17/22
Paylaş
Resmi Orjinal Boyutunda Göster
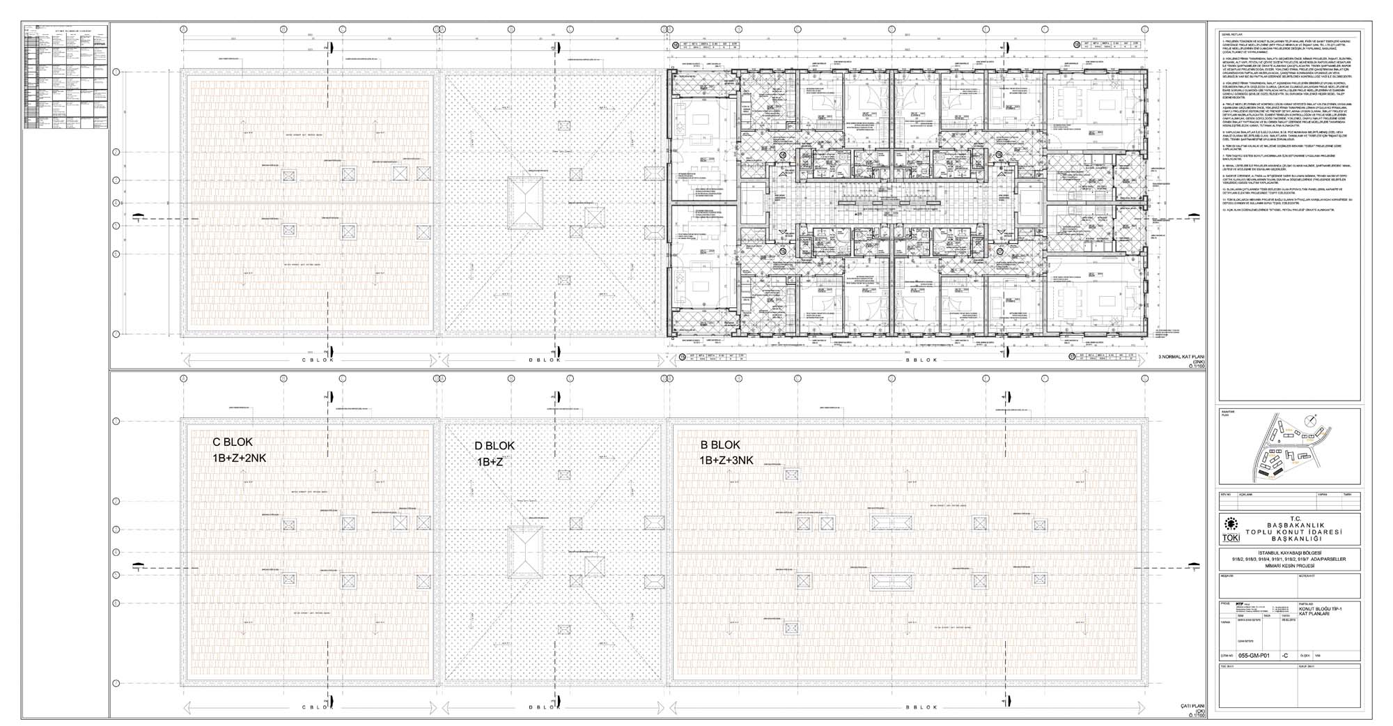
Kayabaşı Vadi Evler Sosyal Konutları
Proje Yeri: Başakşehir, İstanbul
Proje Ofisi: MTF Proje (Mimari Tasarım Fikirleri)
Proje Tipi: Konut Sitesi / Grubu
Proje Tipi Grubu: Konut
Tasarım Ekibi: Derya Ekim Öztepe, Ozan Öztepe, Deniz Çubukçu, Zsofia Török
İşveren: Toplu Konut İdaresi (TOKİ)
Ana Yüklenici: Aydur İnşaat
Fotoğraf: Gürkan Akay, Ozan Öztepe
Proje Başlangıç Yılı: 2013
Proje Bitiş Yılı: 2015
İnşaat Başlangıç Yılı: 2016
İnşaat Bitiş Yılı: 2019
Arsa Alanı: 66,474 m2
Toplam İnşaat Alanı: 73,062 m2