39/41
Paylaş
Resmi Orjinal Boyutunda Göster
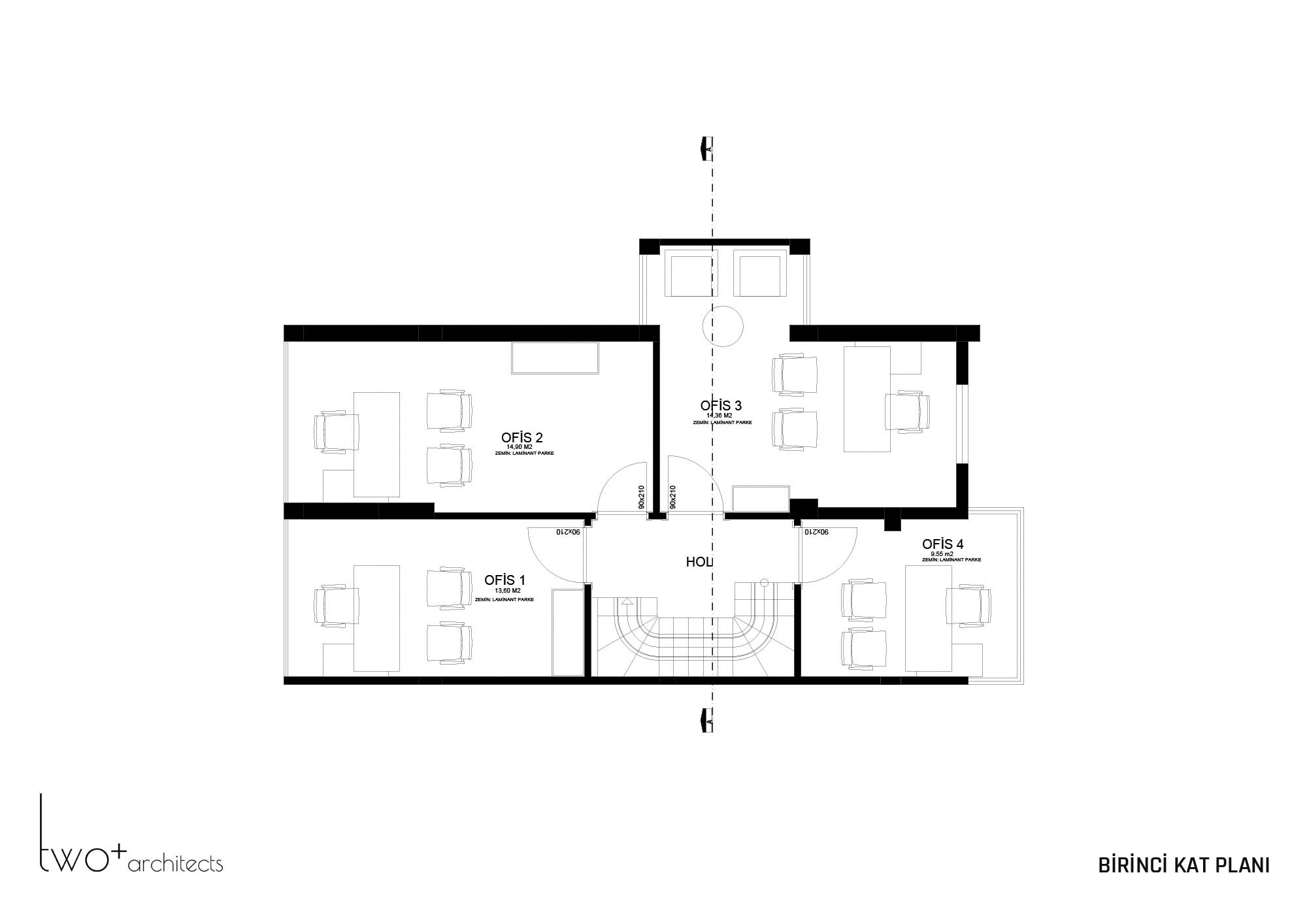
Keydal Hukuk Bürosu
Project Location: Beşiktaş, İstanbul
Project Office: Two Plus Architects
Project Type: Offices
Proje Tipi Grubu: Commercial
Tasarım Ekibi: Bahar Durmuş, Tuna Bayram Ekiz
Employer: Recep Ali Keydal
Ana Yüklenici: Two Plus Architects
Peyzaj Mimarlığı: P Tasarım
Mechanical Project: ACC MEKANİK
Electrical Project: Ahmet DOĞAN
Plumbing Project: İlyas Demir
Photography: Hacer Bozkurt
Project Start Date: 2019
Project End Date: 2019
Construction Start Date: 2019
Construction End Date: 2019
Total Construction Area: 300 m²