19/22
Paylaş
Resmi Orjinal Boyutunda Göster
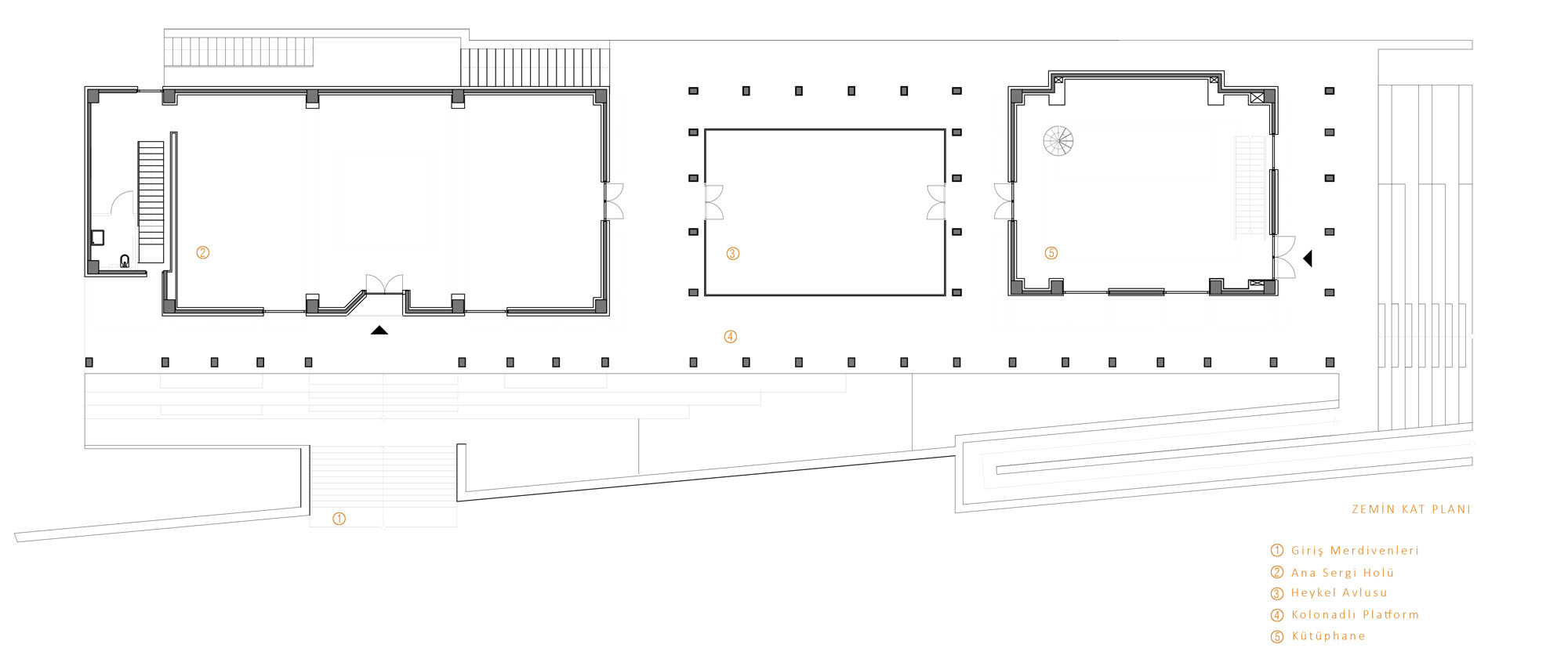
Lucien Arkas Sanat Galerisi
Proje Yeri: Urla, İzmir
Proje Ofisi: Artı3 Mimarlık
Proje Tipi: Kütüphane, Sergi Mekanı / Galeri
Proje Tipi Grubu: Kültür Yapısı
Tasarım Ekibi: Ülkü İnceköse, Uğur Yıldırım
Mimari Proje Ekibi: Ülkü İnceköse, Uğur Yıldırım
İşveren: Arkas Holding
Danışman: Ülkü İnceköse
Yardımcı: Özüm Birgin, Mustafa Nazım, Gizem Biçer, İlkem Kılıç, Hatice Ersoy
Ana Yüklenici: Kerman İnşaat
Alt Yüklenici: Onmuş Elektrik, Meytes Tesisat, Kardelen Peyzaj Planlama, Kardelen Peyzaj Planlama
Peyzaj Mimarlığı: Kardelen Peyzaj Planlama
İç Mekan Projesi: Kristina Steinbuchel/The Big House Mimarlık, Artı3 Mimarlık
Proje Yöneticisi: Rinaldo Ferlandis, Burak Söylemez
Konsept Tasarımı: Artı3 Mimarlık
Uygulama Projesi: Artı3 Mimarlık
Aydınlatma Projesi: Artı3 Mimarlık
Statik Projesi: Ardalı Mühendislik
Mekanik Projesi: Meytes Tesisat
Elektrik Projesi: Onmuş Elektrik
Tesisat Projesi: Meytes Tesisat
Çelik Projesi: Ardalı Mühendislik
Fotoğraf: Zeren + Mehmet Yasa Photography
Mimari Mesleki Kontrollük: Uğur Yıldırım
Proje Başlangıç Yılı: 2017
Proje Bitiş Yılı: 2017
İnşaat Başlangıç Yılı: 2017
İnşaat Bitiş Yılı: 2019
Arsa Alanı: 4460 m2
Toplam İnşaat Alanı: 1370 m2