33/33
Paylaş
Resmi Orjinal Boyutunda Göster
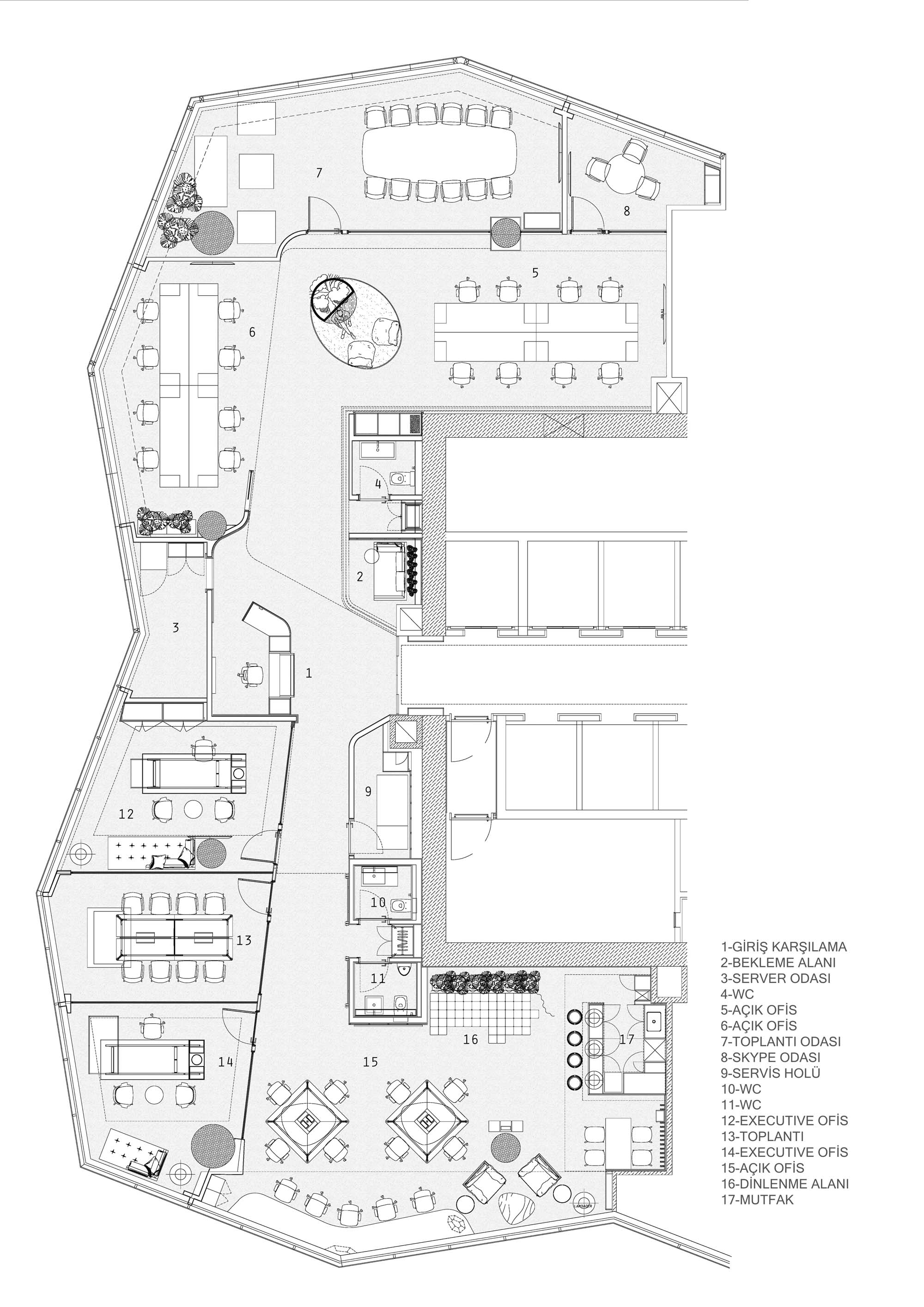
Mobile-X Ofis
Project Location: İzmir, Bornova
Project Office: EKE Mimarlık
Project Type: Offices
Proje Tipi Grubu: Commercial
Tasarım Ekibi: Öznur Turan Eke, Seçil Şavklı, Sadık Tekin, Çağlayan Şafak Kazma, Ayşe Hilal Toprak
Employer: Mobile X
Ana Yüklenici: Miray İnşaat, Pi Yapı
Lighting Project: Ahmet Görsev
Mechanical Project: Kale Mühendislik
Electrical Project: Onmuş Elektrik, Elprom Elektrik
Plumbing Project: Kale Mühendislik
Photography: Nadir Keklik
Project Start Date: 2017
Project End Date: 2019
Construction Start Date: 2017
Construction End Date: 2019
Total Construction Area: 350 m²