38/43
Paylaş
Resmi Orjinal Boyutunda Göster
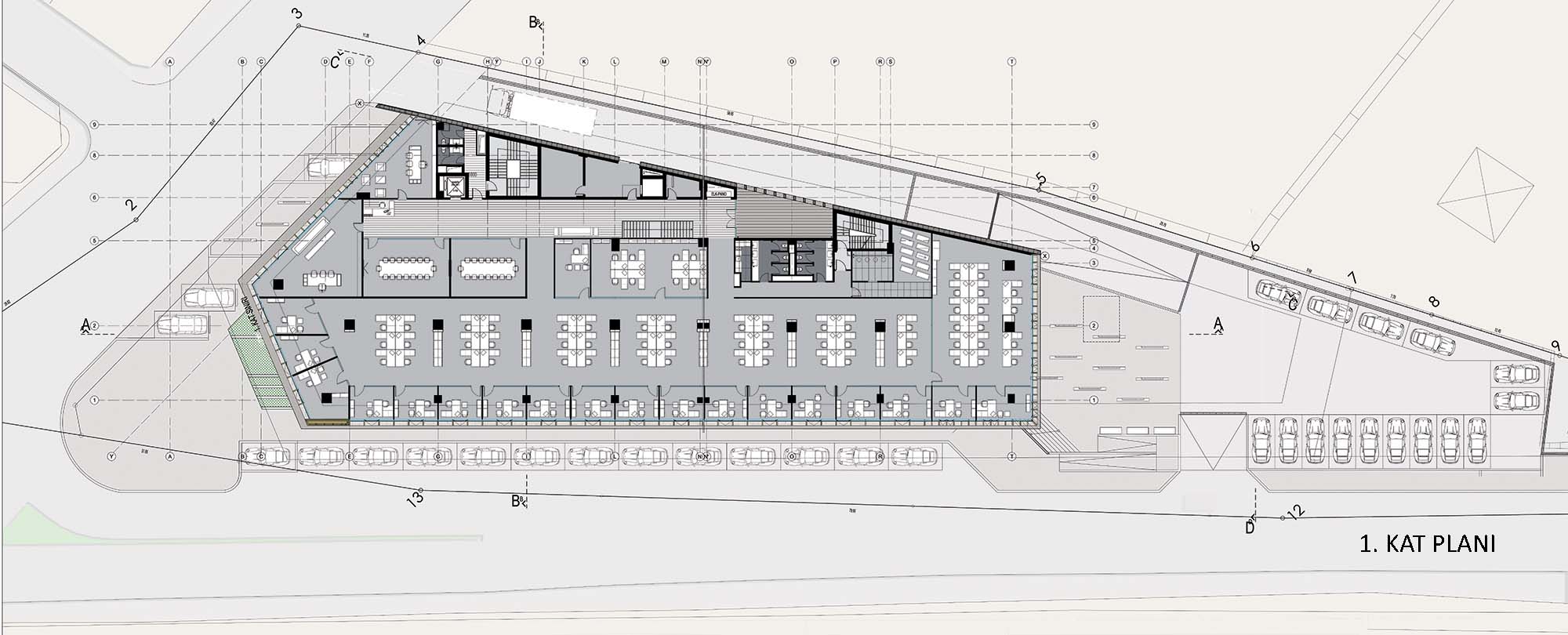
FİLE Genel Merkez Binası
Proje Yeri: İstanbul, Çekmeköy
Proje Ofisi: Mimarca Tasarım ve Mimarlık
Proje Tipi: Ofis
Proje Tipi Grubu: Ticari
Tasarım Ekibi: Jülide Kazas Pekcan
İşveren: File Market
Yardımcı: Hülya Erdoğan, Hatice Tozar Kılıç, Canan Oduncu, Yusuf Shahrour
Ana Yüklenici: İdakon Yapı
Proje Yöneticisi: Jülide Kazas Pekcan
Statik Projesi: Turan İnşaat Mühendislik
Mekanik Projesi: ABC Mekanik
Elektrik Projesi: Enkom Mühendislik
Altyapı Projesi: ABC Mekanik
Fotoğraf: Ahmet Turan Köksal
Şantiye Yöneticisi: İdris Değer
Proje Başlangıç Yılı: 2017
Proje Bitiş Yılı: 2018
İnşaat Başlangıç Yılı: 2018
İnşaat Bitiş Yılı: 2019
Arsa Alanı: 2830 m2
Toplam İnşaat Alanı: 8692 m²