19/19
Paylaş
Resmi Orjinal Boyutunda Göster
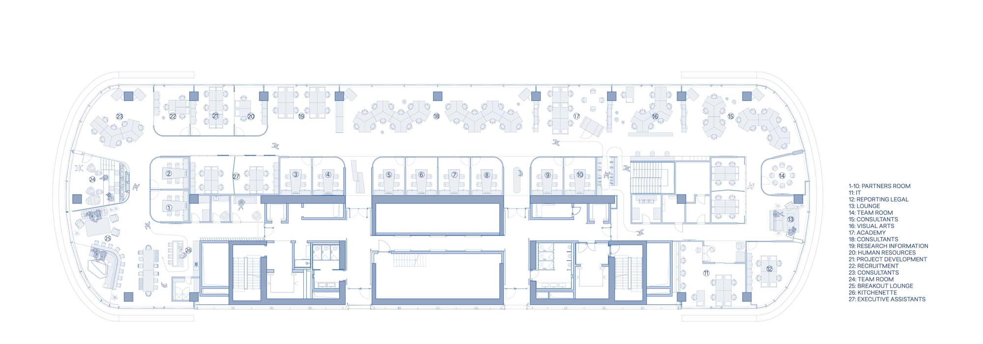
Ofis X
Proje Yeri: İstanbul, Beşiktaş
Proje Ofisi: Erginoğlu & Çalışlar Mimarlık
Proje Tipi: Ofis
Proje Tipi Grubu: Ticari
Tasarım Ekibi: Hasan Çalışlar, Kerem Erginoğlu, Özge Üstündağ, Umut Atlı, Elif Özüçağlıyan, Mete Cem Arabacı
İşveren: Firma X
Ana Yüklenici: Jeyan Ülkü Mimarlık, ST Mimarlık
Proje Yöneticisi: SPM Proje Yönetim
Mekanik Projesi: MEP Mühendislik
Elektrik Projesi: Enkom Mühendislik
Fotoğraf: Cemal Emden
Proje Başlangıç Yılı: 2018
Proje Bitiş Yılı: 2018
İnşaat Başlangıç Yılı: 2018
İnşaat Bitiş Yılı: 2019
Toplam İnşaat Alanı: 1,500 m2