41/43
Paylaş
Resmi Orjinal Boyutunda Göster
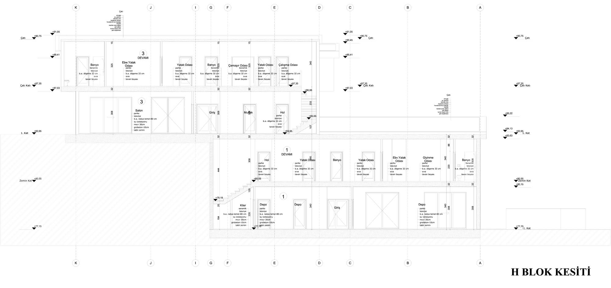
Olea Armonia by Evke
Proje Yeri: Mudanya, Bursa
Proje Ofisi: Architectonic Mimarlık
Proje Tipi: Konut Sitesi / Grubu
Proje Tipi Grubu: Konut
Tasarım Ekibi: Kerem Kahveci, Nazlı İpek Kahveci, Merve Kurt, Merve Alımlı
İşveren: Evke Yapı
Danışman: Murat Evke
Ana Yüklenici: Evke Yapı
Proje Yöneticisi: Kerem Kahveci
Statik Projesi: AKM Mühendislik, Abdülkadir Meral
Mekanik Projesi: Bilberk Isı, Murat Manas
Elektrik Projesi: Mehmet Ünaldı
Tesisat Projesi: Bilberk Isı, Murat Manas
Fotoğraf: Kerem Kahveci
Proje Başlangıç Yılı: 2014
Proje Bitiş Yılı: 2016
İnşaat Başlangıç Yılı: 2016
İnşaat Bitiş Yılı: 2019
Arsa Alanı: 22,000 m²
Toplam İnşaat Alanı: 38,078 m²