22/33
Paylaş
Resmi Orjinal Boyutunda Göster
Onev
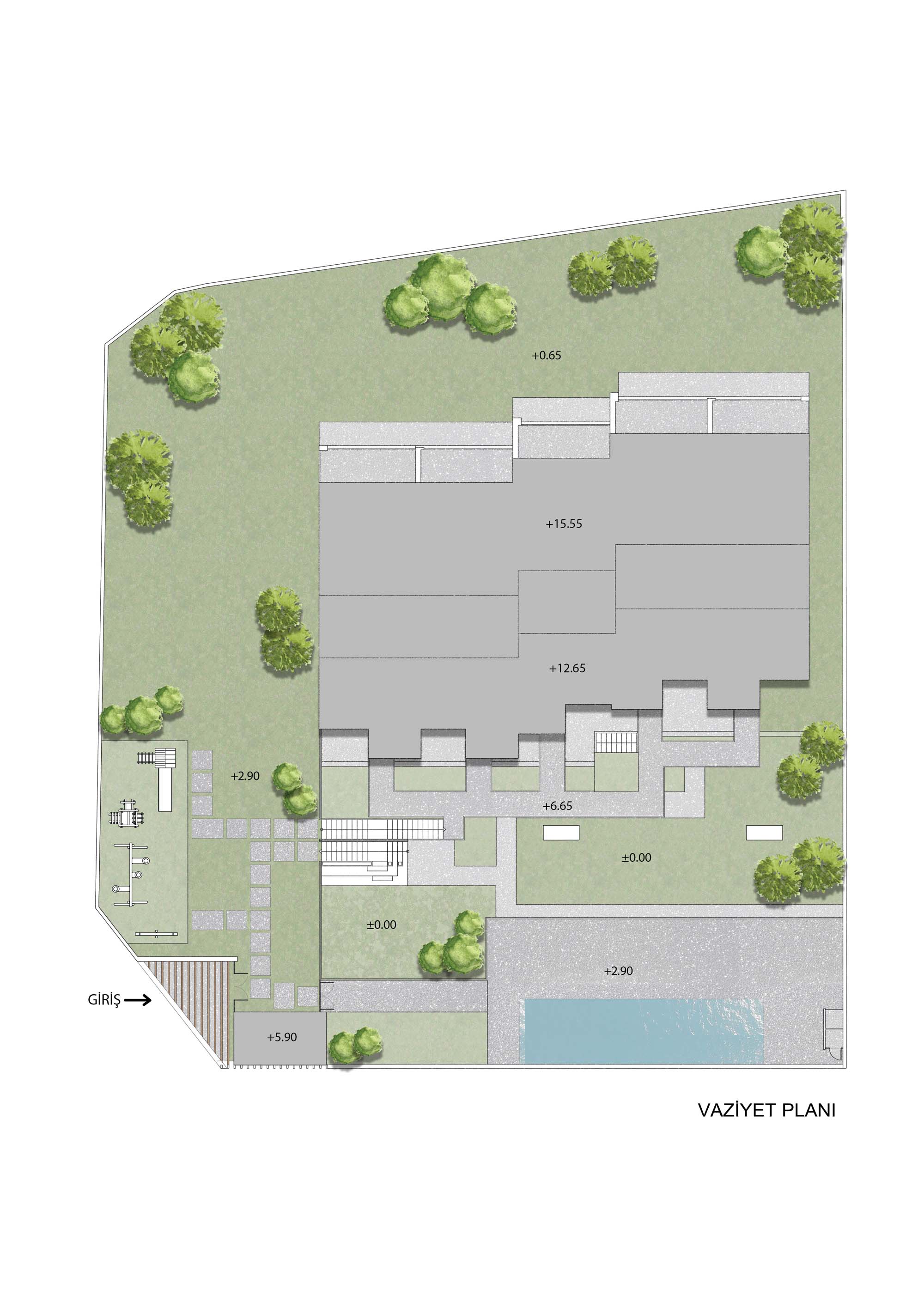
Proje Yeri: Adana, Çukurova, Yeşil Peyzaj
Proje Ofisi: Atölye 360
Proje Tipi: Konut Sitesi / Grubu
Proje Tipi Grubu: Konut
Tasarım Ekibi: Mine Liman, Güliz Çetin
İşveren: Onan Yapı
Yardımcı: Yeşim Kıyak
Ana Yüklenici: Onan Yapı
Statik Projesi: Oran Proje
Mekanik Projesi: Oran Proje
Elektrik Projesi: Oran Proje
Proje Başlangıç Yılı: 2018
Proje Bitiş Yılı: 2019
İnşaat Başlangıç Yılı: 2018
İnşaat Bitiş Yılı: 2019
Arsa Alanı: 2.250 m²
Toplam İnşaat Alanı: 2.485 m²