21/21
Paylaş
Resmi Orjinal Boyutunda Göster
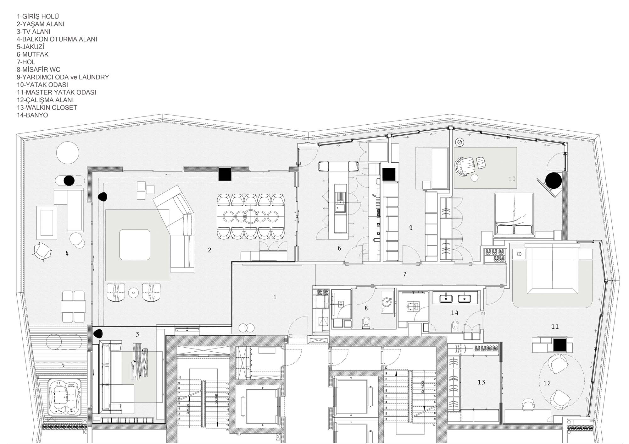
Ortabaş Penthouse
Project Location: İzmir
Project Office: EKE Mimarlık
Project Type: Apartment
Proje Tipi Grubu: Konut
Tasarım Ekibi: Seçil Şavklı, Çağlayan Kazma, Sadık Tekin, Merve Kavraloğlu, Öznur Turan Eke
Employer: Cem Ortabaş
Lighting Project: Ahmet Görsev
Mechanical Project: Kale Mühendislik
Electrical Project: Elprom Elektrik
Photography: Nadir Keklik, Öznur Turan Eke
Architectural Supervision: EKE Mimarlık
Project Start Date: 2019
Project End Date: 2019
Construction Start Date: 2019
Construction End Date: 2019
Total Construction Area: 350 m²