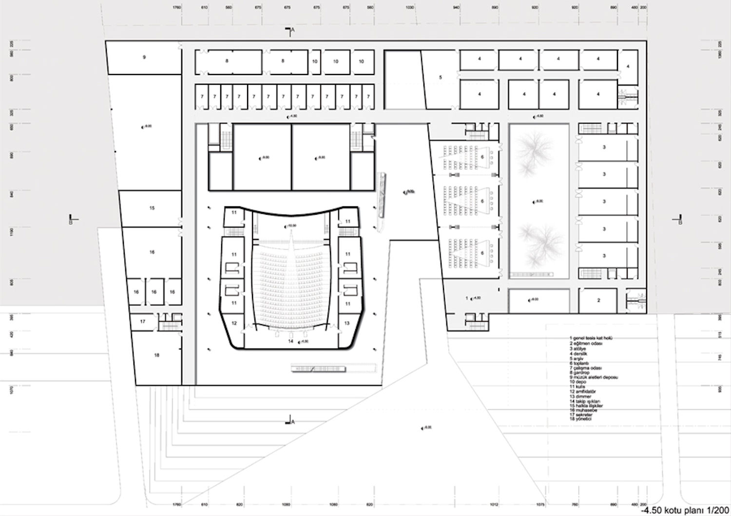
Plan
9/27
Paylaş
Resmi Orjinal Boyutunda Göster
Çankaya Belediyesi Başkanlık Hizmet Binası, Sanat Merkezi ve Ulvi Cemal Erkin Konser Salonu Ulusal Mimari Proje Yarışması, 1. Mansiyon
Proje Yeri: Çankaya, Ankara
Proje Tipi Grubu: 1. Mansiyon
Tasarım Ekibi: Dilek Topuz Derman, Erhan Vural, Hakkı Can Özkan
Danışman: Zühtü Ferah, Erdinç Özkara, Mehmet Karadurak, Mehmet Çalışkan, Başak Taş Özdemir
Yardımcı: Semih Arslan, Yusuf Uyar