29/34
Paylaş
Resmi Orjinal Boyutunda Göster
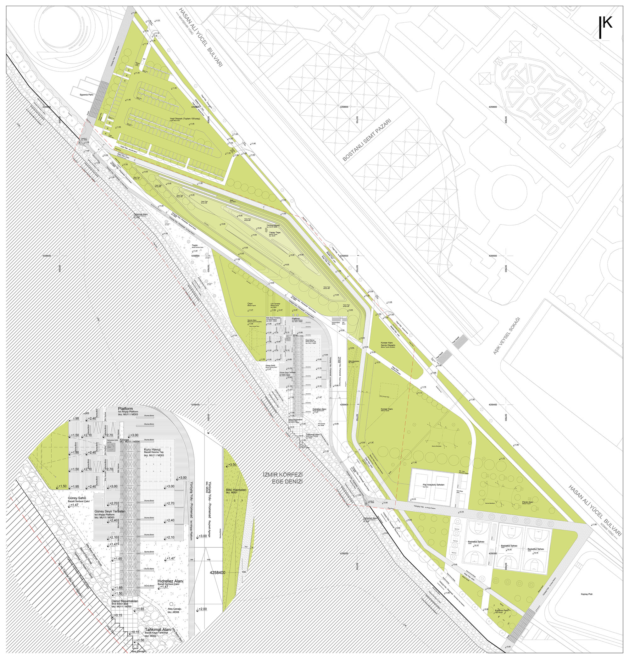
Pavilion by the Sea
Proje Yeri: Karşıyaka, İzmir
Proje Ofisi: Studio Evren Başbuğ
Proje Tipi: Park
Proje Tipi Grubu: Peyzaj Tasarımı
Tasarım Ekibi: Evren Başbuğ, Can Özcan, Oğuzhan Zeytinoğlu
İşveren: İzmir Büyükşehir Belediyesi
Danışman: Durmuş Ali Kasap, Korhan Şişman, Dilşad Kurtoğlu, Ceyhun Baskın, Rüya İpek Balaban
Yardımcı: Özlem Arvas
Ana Yüklenici: Ladin İnşaat
Proje Yöneticisi: Evren Başbuğ
Konsept Tasarımı: Evren Başbuğ
Aydınlatma Projesi: Studio Evren Başbuğ, Alişer Parlak
Statik Projesi: Cemal Coşak, Mustafa Şahin, Methal Mühendislik
Elektrik Projesi: Alişer Parlak
Tesisat Projesi: Necdet Tunalı, Proje Isı
Çelik Projesi: Cemal Coşak, Mustafa Şahin, Methal Mühendislik
Fotoğraf: Yercekim Mimari Fotograf, Zeren + Mehmet Yasa Photography
Proje Başlangıç Yılı: 2015
Proje Bitiş Yılı: 2016
İnşaat Başlangıç Yılı: 2017
İnşaat Bitiş Yılı: 2019
Arsa Alanı: 20.830 m2
Toplam İnşaat Alanı: 8.500 m²