33/37
Paylaş
Resmi Orjinal Boyutunda Göster
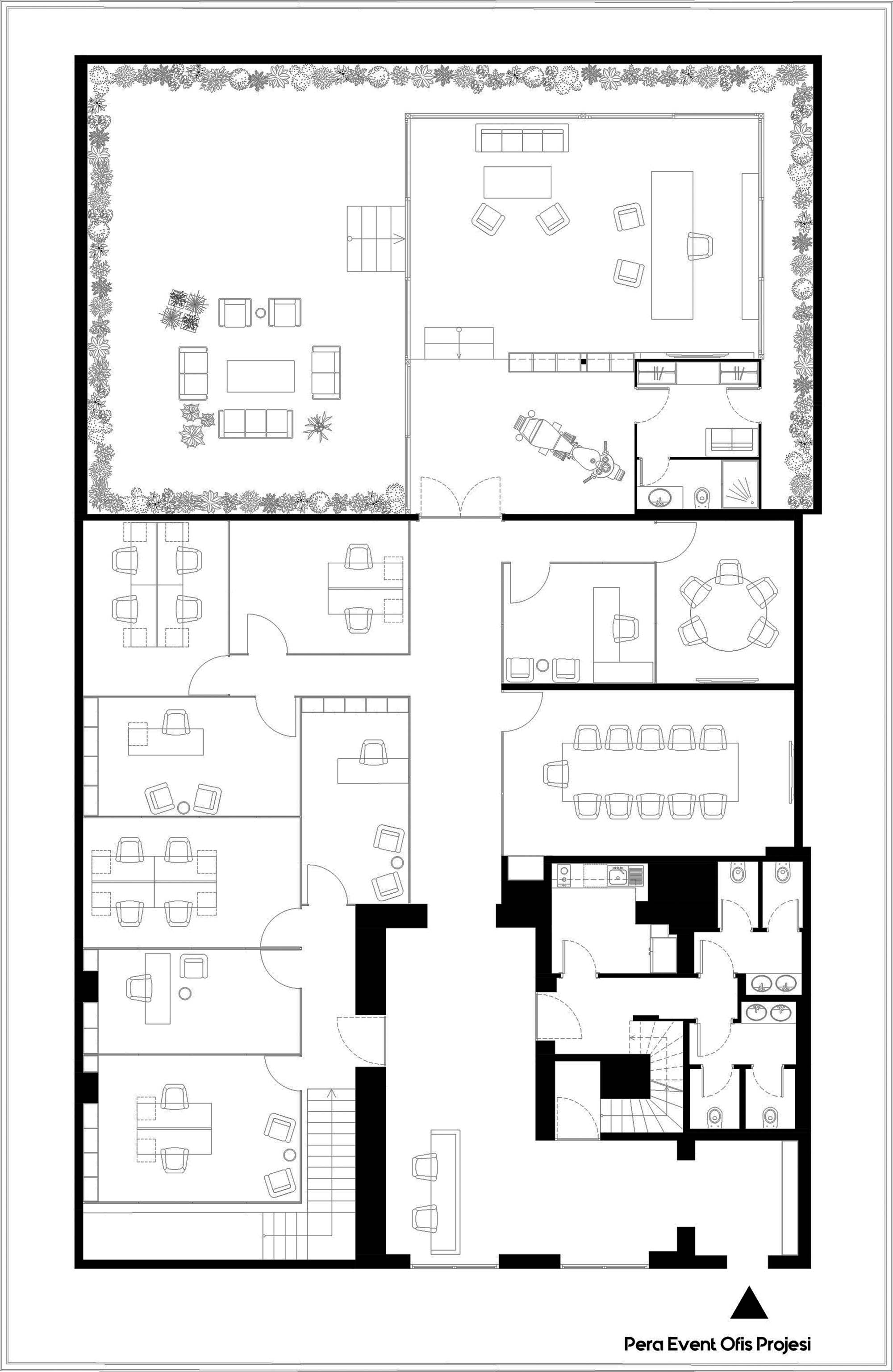
Pera Event HQ
Proje Yeri: Beşiktaş, İstanbul
Proje Ofisi: Duman Architects
Proje Tipi: Ofis
Proje Tipi Grubu: Ticari
Tasarım Ekibi: Samet Duman, Özge Bartık, Duygu Ceren Yıldırım, Ayşegül Albustanlı, Hazel Şenel
İşveren: Pera Event
Yardımcı: Hülya Çınar, Yüksel Polat, Hasan Özturna, Uğur Sivri
Ana Yüklenici: Duman Architects
Proje Yöneticisi: Samet Duman
Fotoğraf: ALTKAT Architectural Photography
Proje Başlangıç Yılı: 2018
Proje Bitiş Yılı: 2019
İnşaat Başlangıç Yılı: 2018
İnşaat Bitiş Yılı: 2019
Toplam İnşaat Alanı: 520 m²