47/47
Paylaş
Resmi Orjinal Boyutunda Göster
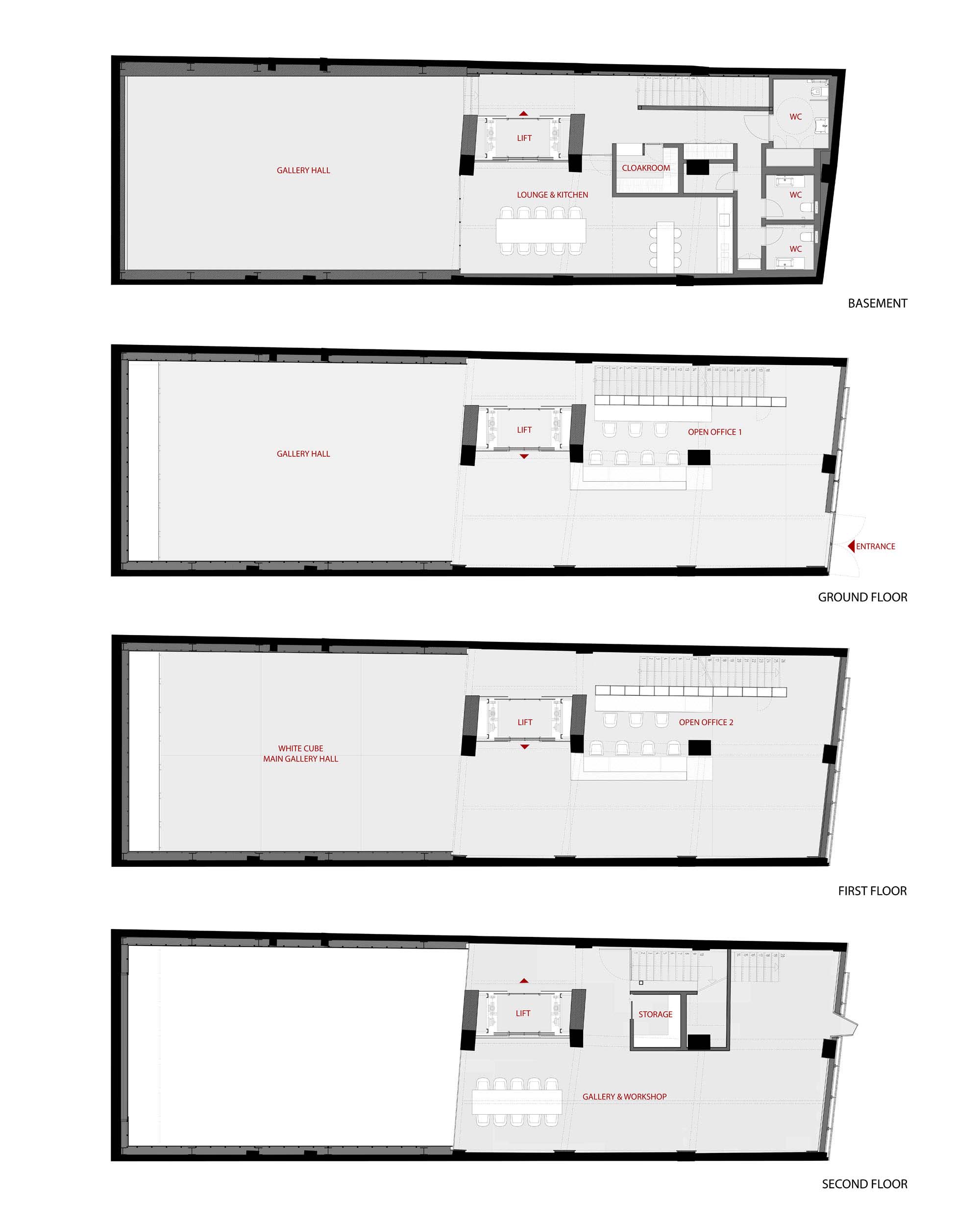
Pilevneli Gallery Dolapdere
Proje Yeri: İstanbul, Beyoğlu
Proje Ofisi: EAA-Emre Arolat Architecture
Proje Tipi: Sergi Mekanı / Galeri
Proje Tipi Grubu: Kültür
Tasarım Ekibi: Emre Arolat, Dilşad Anıl, Deniz Kösemen, Zeynep Arolat
İşveren: Pilevneli Gallery
Yardımcı: Skec Architects
Ana Yüklenici: Pilevneli Gallery
Statik Projesi: Viramer Engineering
Fotoğraf: Cemal Emden, Thomas Mayer
Proje Başlangıç Yılı: 2015
Proje Bitiş Yılı: 2017
İnşaat Başlangıç Yılı: 2016
İnşaat Bitiş Yılı: 2019
Arsa Alanı: 235 m²
Toplam İnşaat Alanı: 935 m²