24/32
Paylaş
Resmi Orjinal Boyutunda Göster
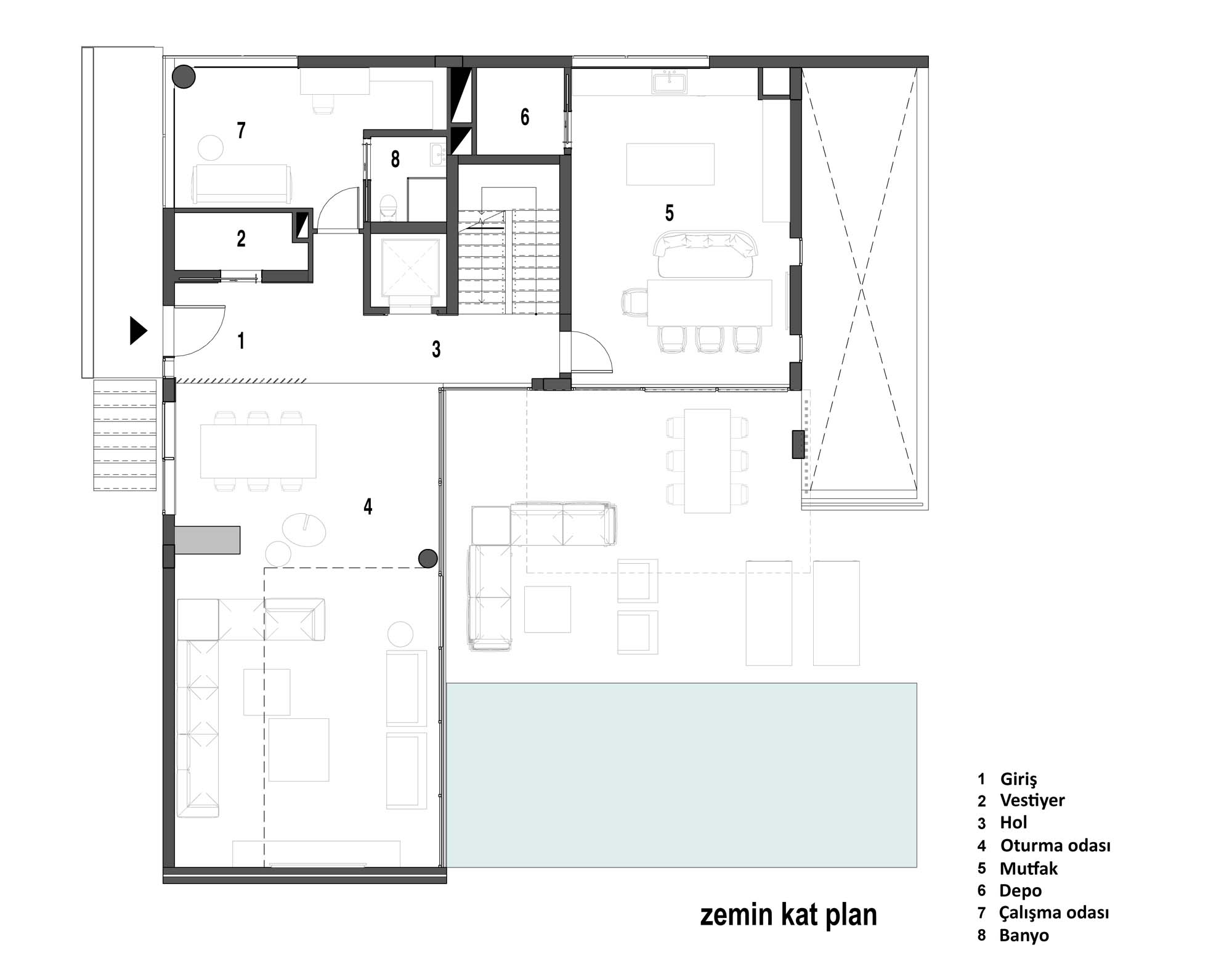
SE Evi
Proje Yeri: Çankaya, Ankara
Proje Ofisi: VEN Mimarlık
Proje Tipi: Tek Ev / Villa
Proje Tipi Grubu: Konut
Tasarım Ekibi: Gül Güven, İrem Kılıç, Gamze Güven, Figen Zorlu, Recep Aygın
İşveren: Aydoğan Erden
Ana Yüklenici: Aydoğan Erden
Peyzaj Mimarlığı: Promim Çevre Düzenleme, Kentsel Tasarım
Statik Projesi: Konkan Mühendislik
Mekanik Projesi: Ünlü Mühendislik
Elektrik Projesi: Yurdakul Mühendislik
Fotoğraf: Gürkan Akay
Proje Başlangıç Yılı: 2014
Proje Bitiş Yılı: 2014
İnşaat Başlangıç Yılı: 2014
İnşaat Bitiş Yılı: 2019
Arsa Alanı: 811 m²
Toplam İnşaat Alanı: 513,59 m²