19/21
Paylaş
Resmi Orjinal Boyutunda Göster
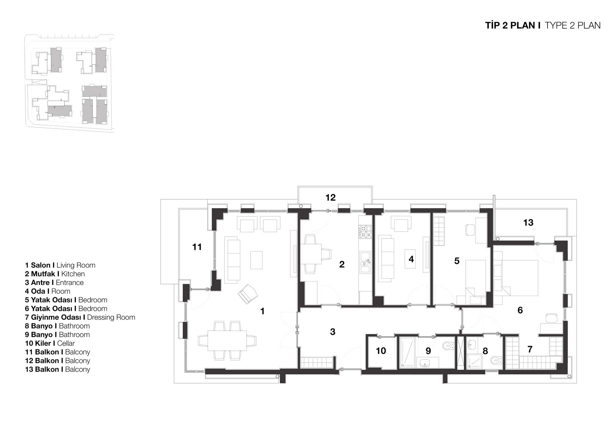
Serdivan 441
Proje Yeri: Adapazarı (Sakarya), Serdivan
Proje Ofisi: the | work
Proje Tipi: Konut Sitesi / Grubu
Proje Tipi Grubu: Konut
Tasarım Ekibi: Büşra Koçak, Berk Arinç, Ufuk Polat
İşveren: Remley İnşaat
Ana Yüklenici: Remley İnşaat
Fotoğraf: Alp Eren, ALTKAT Architectural Photography
Şantiye Yöneticisi: Kamil Yazar
Proje Başlangıç Yılı: 2017
Proje Bitiş Yılı: 2017
İnşaat Başlangıç Yılı: 2017
İnşaat Bitiş Yılı: 2019
Arsa Alanı: 4.020 m2
Toplam İnşaat Alanı: 4.500 m2