23/26
Paylaş
Resmi Orjinal Boyutunda Göster
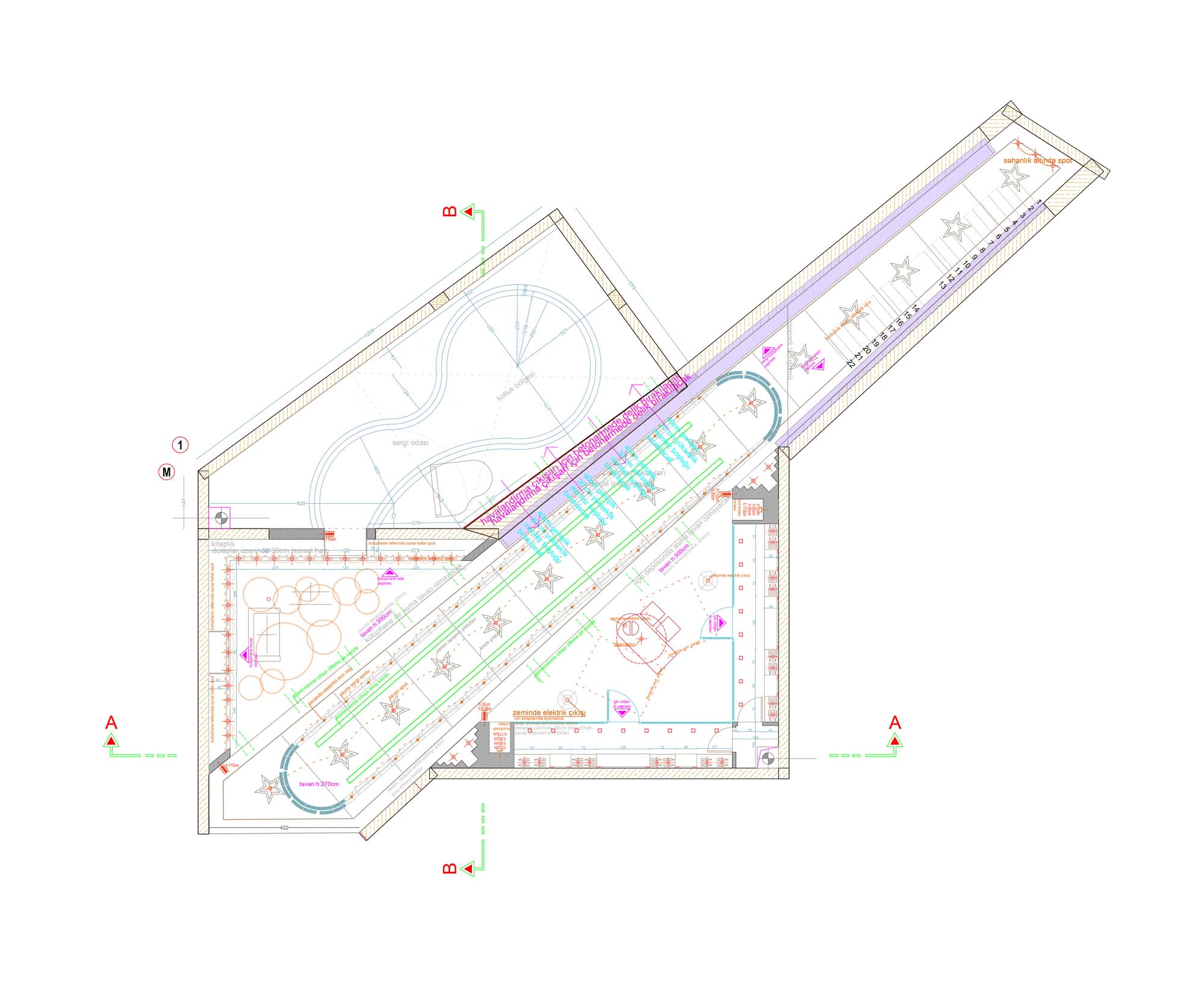
Urla Evi Kahramanlar Tüneli
Project Location: Urla, İzmir
Project Office: Selina Kazazoğlu Interior & Product Design
Project Type: Single House
Proje Tipi Grubu: Konut
Tasarım Ekibi: Selina Kazazoğlu
Ana Yüklenici: Selina Kazazoğlu Interior & Product Design
Lighting Project: Selina Kazazoğlu
Photography: Kadir Aşnaz
Project Start Date: 2017
Project End Date: 2018
Construction Start Date: 2017
Construction End Date: 2019
Total Construction Area: 390 m²