23/23
Paylaş
Resmi Orjinal Boyutunda Göster
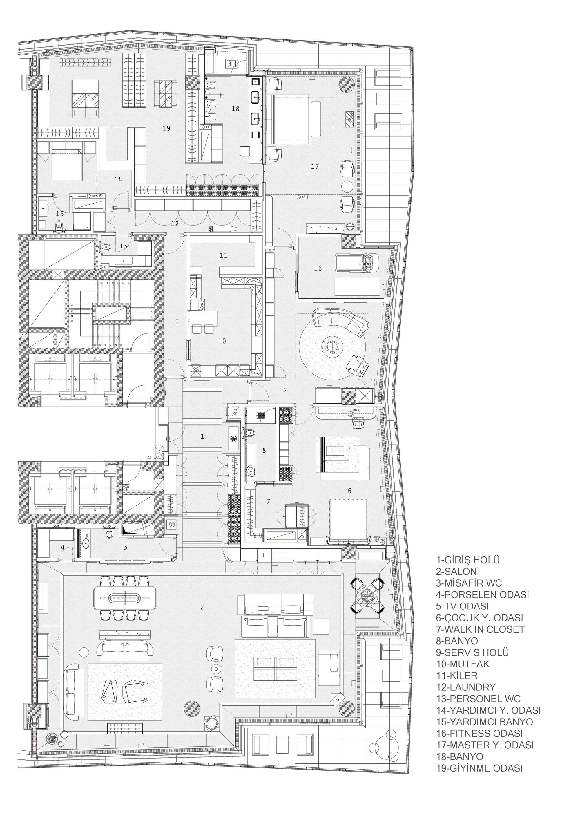
Zorluda Penthouse
Project Location: İstanbul, Beşiktaş
Project Office: EKE Mimarlık
Project Type: Apartment
Proje Tipi Grubu: Konut
Tasarım Ekibi: Öznur Turan Eke, Seçil Şavklı, Irmak Seküçoğlu, Ayşe Hilal Toprak, Sadık Tekin
Ana Yüklenici: Cengiz İnşaat, Era Teknik
Lighting Project: Ahmet Görsev
Mechanical Project: Era Technic
Electrical Project: Era Technic
Photography: Ahmet Görsev
Project Start Date: 2018
Project End Date: 2019
Construction Start Date: 2019
Construction End Date: 2019
Total Construction Area: 600 m²