8/38
Paylaş
Resmi Orjinal Boyutunda Göster
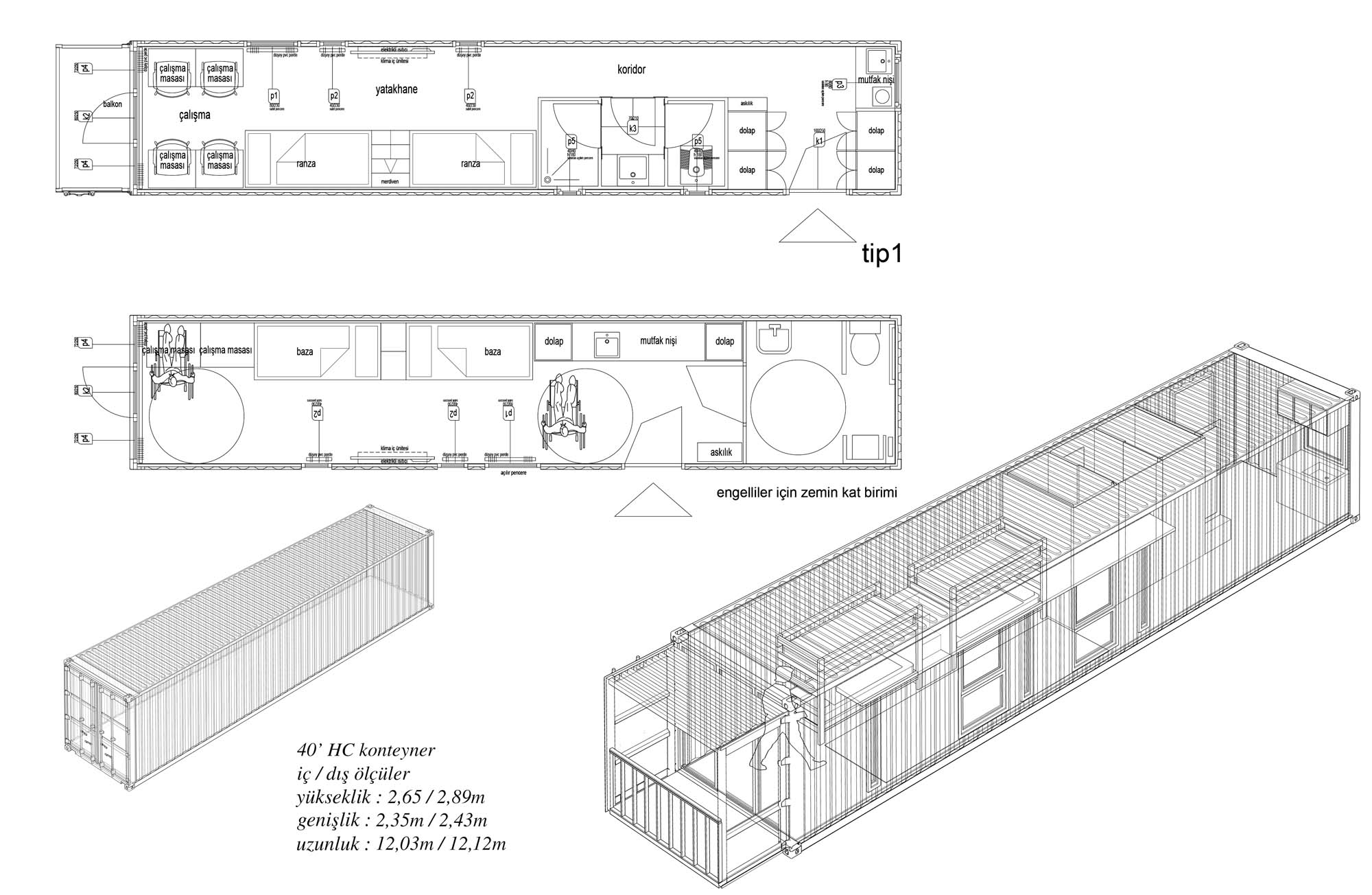
29 Mayıs Üniversitesi Elmalıkent Erkek Öğrenci Yurdu
Proje Yeri: Ümraniye, İstanbul
Proje Ofisi: Az-Uz Mimarlık ve Tasarım İşliği
Proje Tipi: Yurt / Konukevi, Konteyner
Proje Tipi Grubu: Konaklama
Tasarım Ekibi: Emre Can Yılmaz
İşveren: 29 Mayıs Üniversitesi
Yardımcı: Serkan Gudu
Ana Yüklenici: İbrahim Akmanoğlu, 29 Mayıs Üniversitesi
Statik Projesi: İbrahim Akmanoğlu
Fotoğraf: Emre Can Yılmaz
Şantiye Yöneticisi: Serkan Gudu, İbrahim Akmanoğlu
Proje Başlangıç Yılı: 2018
Proje Bitiş Yılı: 2018
İnşaat Başlangıç Yılı: 2018
İnşaat Bitiş Yılı: 2019
Arsa Alanı: 6,083 m²
Toplam İnşaat Alanı: 3,653 m²