40/43
Paylaş
Resmi Orjinal Boyutunda Göster
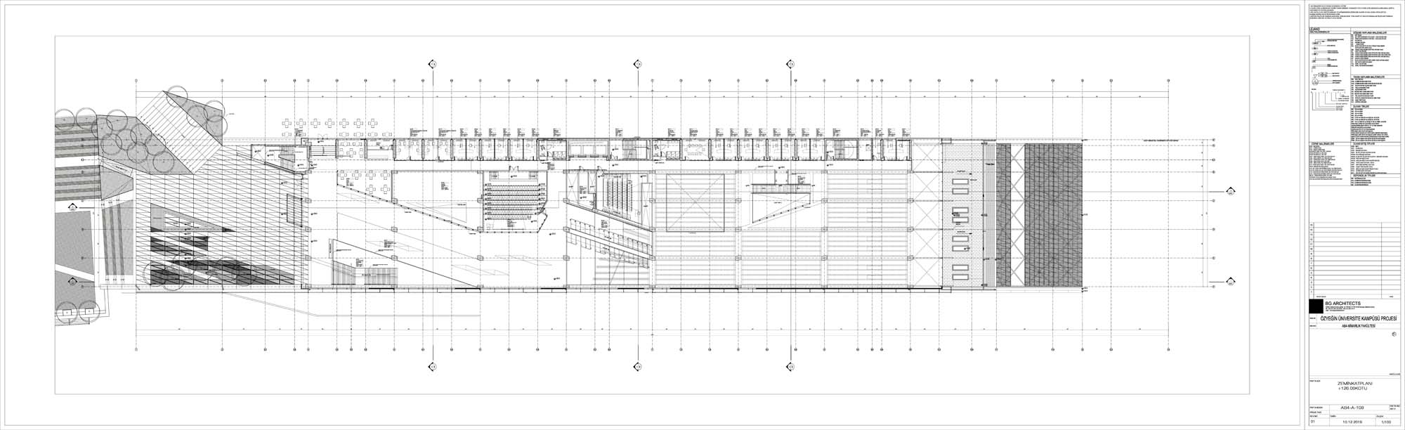
ÖZÜ Mimarlık ve Tasarım Fakültesi Binası
Proje Yeri: İstanbul, Çekmeköy
Proje Ofisi: ARK-itecture, BG Architects
Proje Tipi: Yüksek Öğretim Yapısı
Proje Tipi Grubu: Eğitim Yapısı
Tasarım Ekibi: Roger Klein, Bülent Ergin Güngör, Can Dağarslanı, Caner Ölçüşenler
Mimari Proje Ekibi: Chris Shusta, Emir Şahin Çil, Benjamin Kinghorn, Gökçe Su Akdağ, Mustafa Özdemir, Eda Yiğit, Ozan Duvarcı
İşveren: Fiba Gayrimenkul
Danışman: FMT Cephe Danışmanlık
Ana Yüklenici: Berko İnşaat
Peyzaj Mimarlığı: ON Tasarım
İç Mekan Projesi: BG Architects
Proje Yöneticisi: Can Dağarslanı
Konsept Tasarımı: ARK-itecture
Uygulama Projesi: BG Architects
Cephe Tasarımı: ARK-itecture
Aydınlatma Projesi: Nergiz Arifoğlu Lightstyle - Mimari Aydınlatma Tasarımı ve Danışmanlığı
Grafik Tasarım: BG Architects
Statik Projesi: Balkar Mühendislik
Mekanik Projesi: EKO Tasarım
Elektrik Projesi: Latek İnşaat Elektrik Proje
Çelik Projesi: Balkar Mühendislik
Altyapı Projesi: Geo Dynamics
Akustik Projesi: Duyal Karagözoğlu
Yangın Tahliye Projesi: Etik Mühendislik
Yangın Güvenlik Danışmanı: Kazım Beceren
Fotoğraf: İbrahim Özbunar
Şantiye Yöneticisi: Fiba Gayrimenkul
Proje Başlangıç Yılı: 2017
Proje Bitiş Yılı: 2017
İnşaat Başlangıç Yılı: 2017
İnşaat Bitiş Yılı: 2019
Arsa Alanı: 12158 m2
Toplam İnşaat Alanı: 26000 m2