41/46
Paylaş
Resmi Orjinal Boyutunda Göster
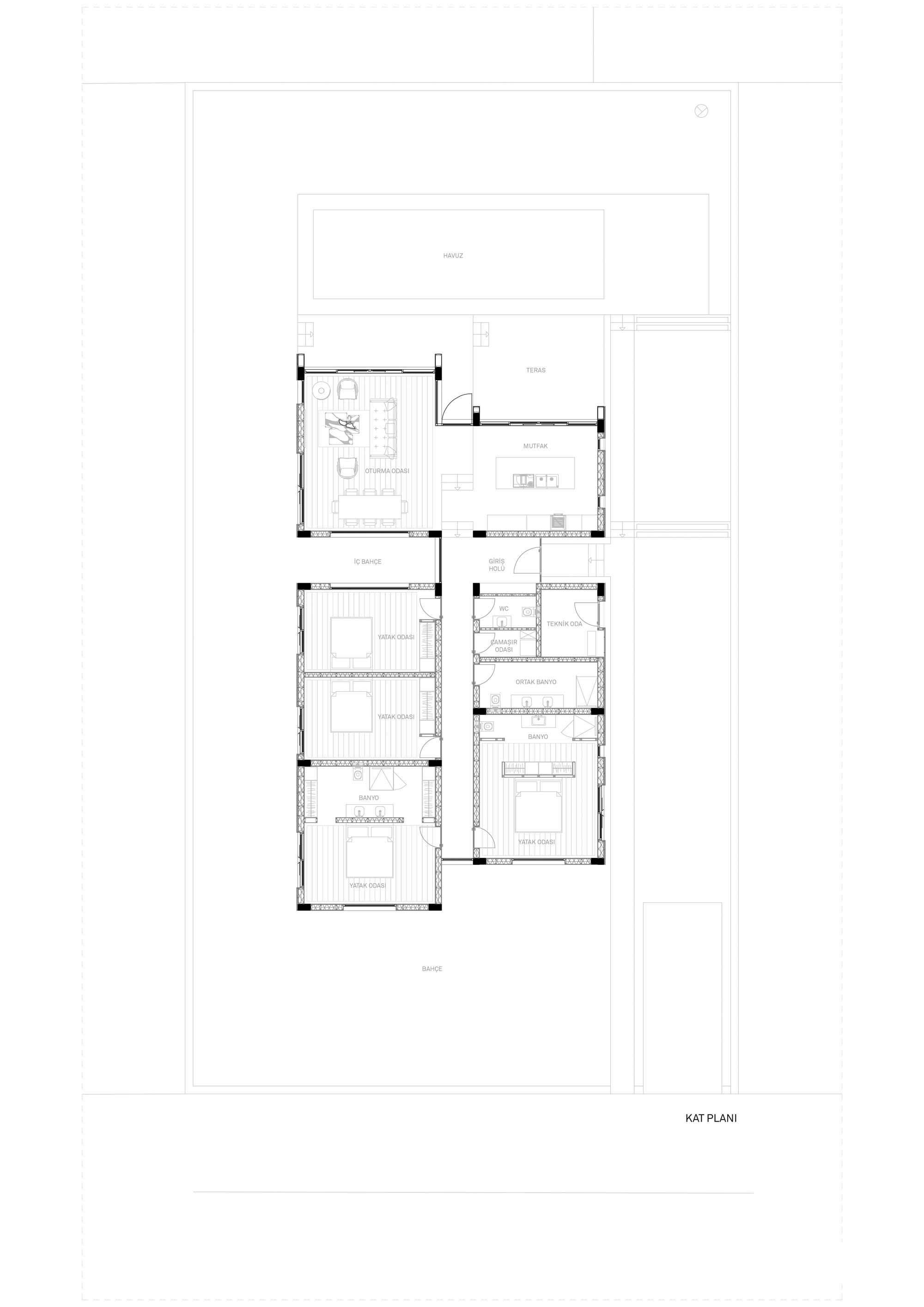
Mamurbaba House
Project Location: İzmir, Çeşme
Project Office: Orkun Nayki Architecture
Project Type: Single House
Proje Tipi Grubu: Konut
Tasarım Ekibi: Orkun Nayki
Employer: Orkun Nayki
Ana Yüklenici: Orkun Nayki
Structural Project: Timuçin Bakıcı
Mechanical Project: Alfa Mühendislik
Electrical Project: Kibele Elektrik
Photography: İbrahim Özbunar
Project Start Date: 2019
Project End Date: 2019
Construction Start Date: 2019
Construction End Date: 2019
Building Plot Area: 817 m2
Total Construction Area: 248 m2