46/49
Paylaş
Resmi Orjinal Boyutunda Göster
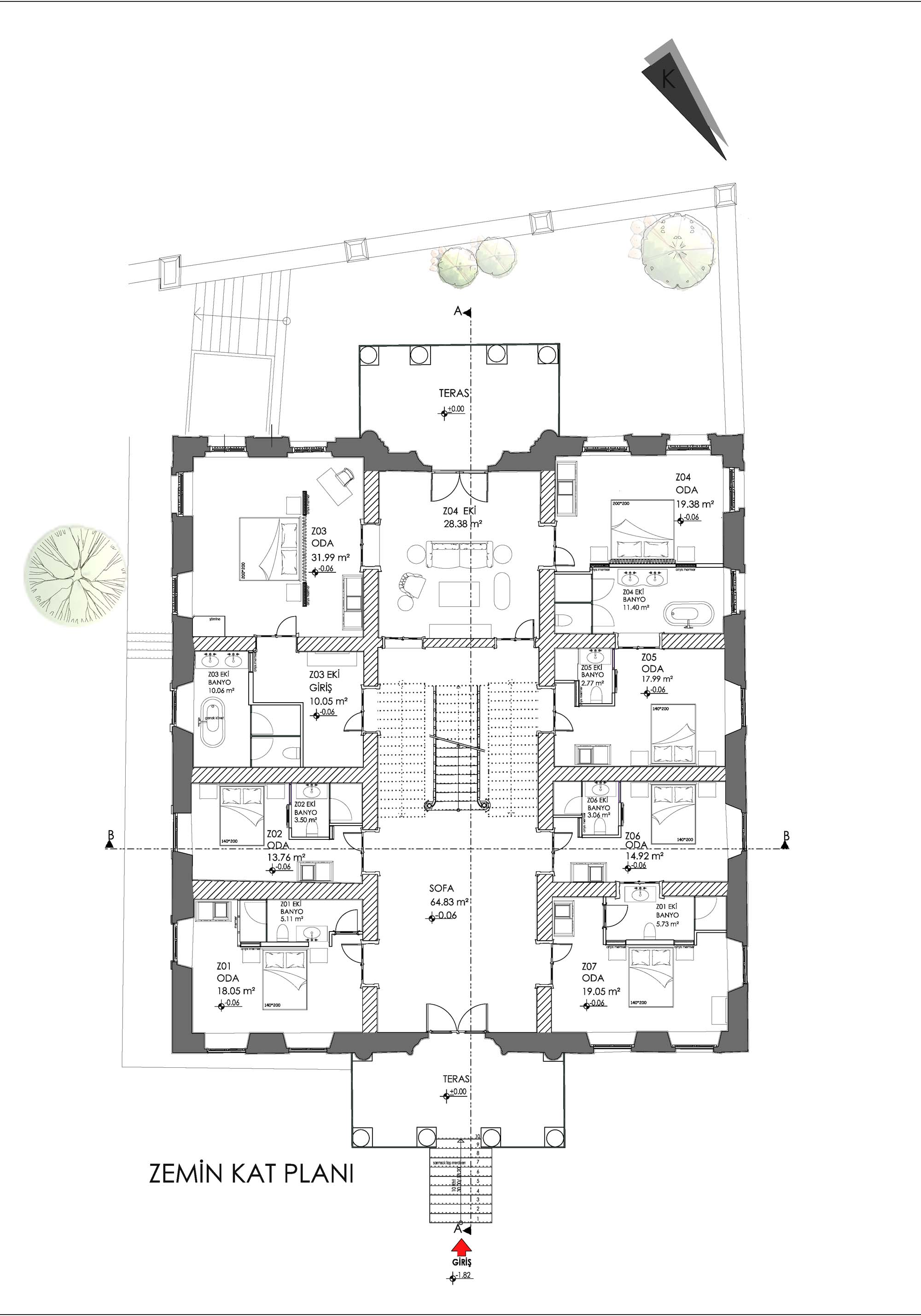
Cunda Despot Evi
Proje Yeri: Balıkesir, Ayvalık
Proje Ofisi: KHG Mimarlık
Proje Tipi: Otel / Motel
Proje Tipi Grubu: Konaklama
Tasarım Ekibi: Işıl Gençoğlu, Süleyman Taşar, Başak Gençoğlu, Büşra Yücel, Gökhan Manastırlı, Gökhan Çokçetin
İşveren: Kültür ve Turizm Bakanlığı
Ana Yüklenici: Mi-Ha Turizm
Peyzaj Mimarlığı: KHG Mimarlık, Cephe Mimarlık
İç Mekan Projesi: KHG Mimarlık, Cephe Mimarlık
Proje Yöneticisi: Süleyman Taşar
Konsept Tasarımı: KHG Mimarlık, Cephe Mimarlık
Uygulama Projesi: KHG Mimarlık, Cephe Mimarlık
Cephe Tasarımı: KHG Mimarlık, Cephe Mimarlık
Aydınlatma Projesi: KHG Mimarlık, Cephe Mimarlık
Statik Projesi: Serender Mühendislik
Mekanik Projesi: Mekanik Proje Mühendislik
Elektrik Projesi: Umutkan Elektrik
Tesisat Projesi: Mekanik Proje Mühendislik
Çelik Projesi: Cephe Mimarlık
Altyapı Projesi: Cephe Mimarlık
Yangın Tahliye Projesi: BS Mekanik
Fotoğraf: Cumhur Aygün
Mimari Mesleki Kontrollük: Işıl Gençoğlu
Şantiye Yöneticisi: Süleyman Taşar, Gökhan Çokçetin
Proje Başlangıç Yılı: 2017
Proje Bitiş Yılı: 2018
İnşaat Başlangıç Yılı: 2018
İnşaat Bitiş Yılı: 2019
Arsa Alanı: 2.678 m²
Toplam İnşaat Alanı: 2.540 m²