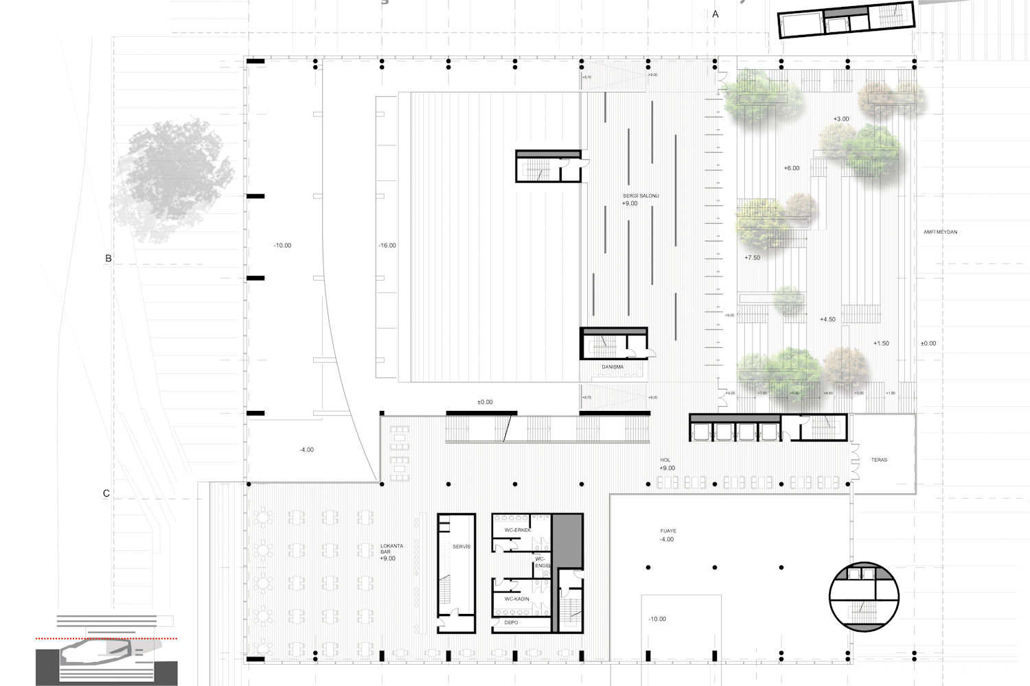
Plan
14/22
Paylaş
Resmi Orjinal Boyutunda Göster
Çankaya Belediyesi Başkanlık Hizmet Binası, Sanat Merkezi ve Ulvi Cemal Erkin Konser Salonu Ulusal Mimari Proje Yarışması, 3. Mansiyon
Proje Yeri: Çankaya, Ankara
Proje Tipi Grubu: 3. Mansiyon
Tasarım Ekibi: İpek Yürekli, Suna Birsen Otay, Arda İnceoğlu
Danışman: Hakan Çatalkaya, Belgin Merey, Sarper Giray, Cem Altun, Deniz Aslan
Yardımcı: Fulya Eliyatkın, Sevda Ağcakale, Gürkan Okta, Mehmet Gören, Benek Çinçik, Eylem Yılmaz