9/11
Paylaş
Resmi Orjinal Boyutunda Göster
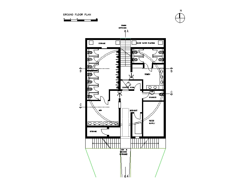
Kadikoy Tuvalet
Proje Yeri: Kadıköy, İstanbul
Proje Ofisi: Global Architectural Development (GAD)
Proje Tipi: Tuvalet
Tasarım Ekibi: Gökhan Avcıoğlu
Mimari Proje Ekibi: Oğuz Cankan, Aslı Şener, Seçil Vancı
İşveren: Selahattin Teke
Proje Yöneticisi: Oğuz Cankan
Statik Projesi: Celal Erdem
Proje Başlangıç Yılı: 1994
Proje Bitiş Yılı: 1995
İnşaat Başlangıç Yılı: 1995
İnşaat Bitiş Yılı: 1997
Arsa Alanı: 176
Toplam İnşaat Alanı: 350