6/7
Paylaş
Resmi Orjinal Boyutunda Göster
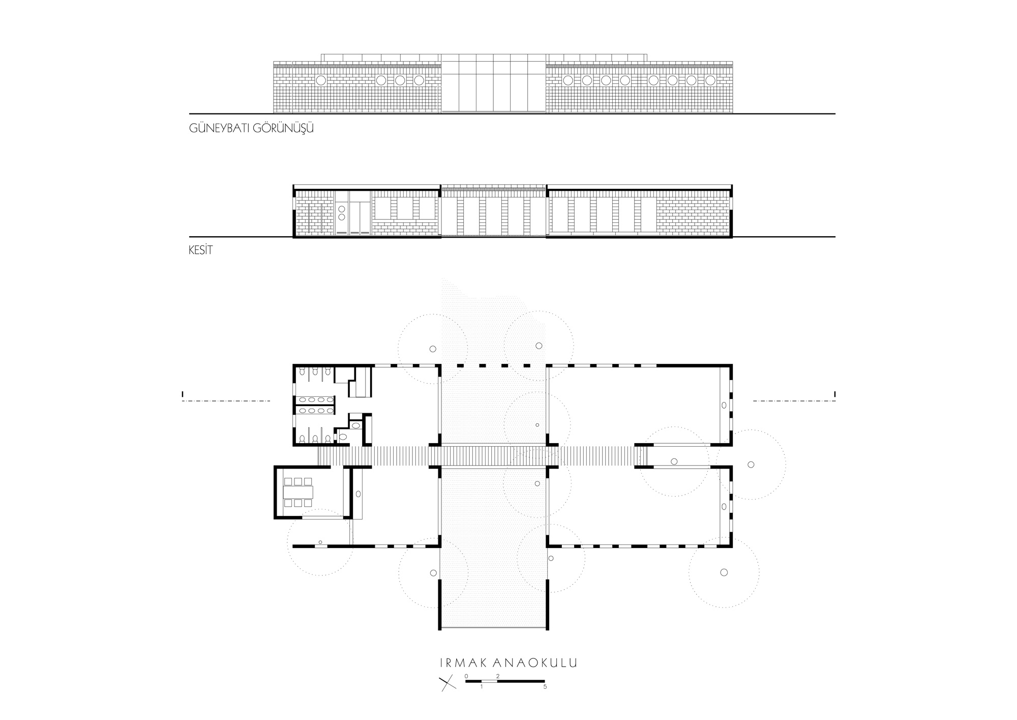
Irmak Anaokulu
Project Location: Caddebostan, İstanbul
Project Office: Nevzat Sayın Mimarlık Hizmetleri (NSMH)
Project Type: Preschool / Nursery
Tasarım Ekibi: Nevzat Sayın, Elvan Uluutku
Structural Project: Yapı Merkezi
Mechanical Project: İlker Tiryakioğlu
Electrical Project: Ümit Bülbüloğlu
Project Start Date: 1997
Project End Date: 1997
Construction Start Date: 1998
Total Construction Area: 246