27/28
Paylaş
Resmi Orjinal Boyutunda Göster
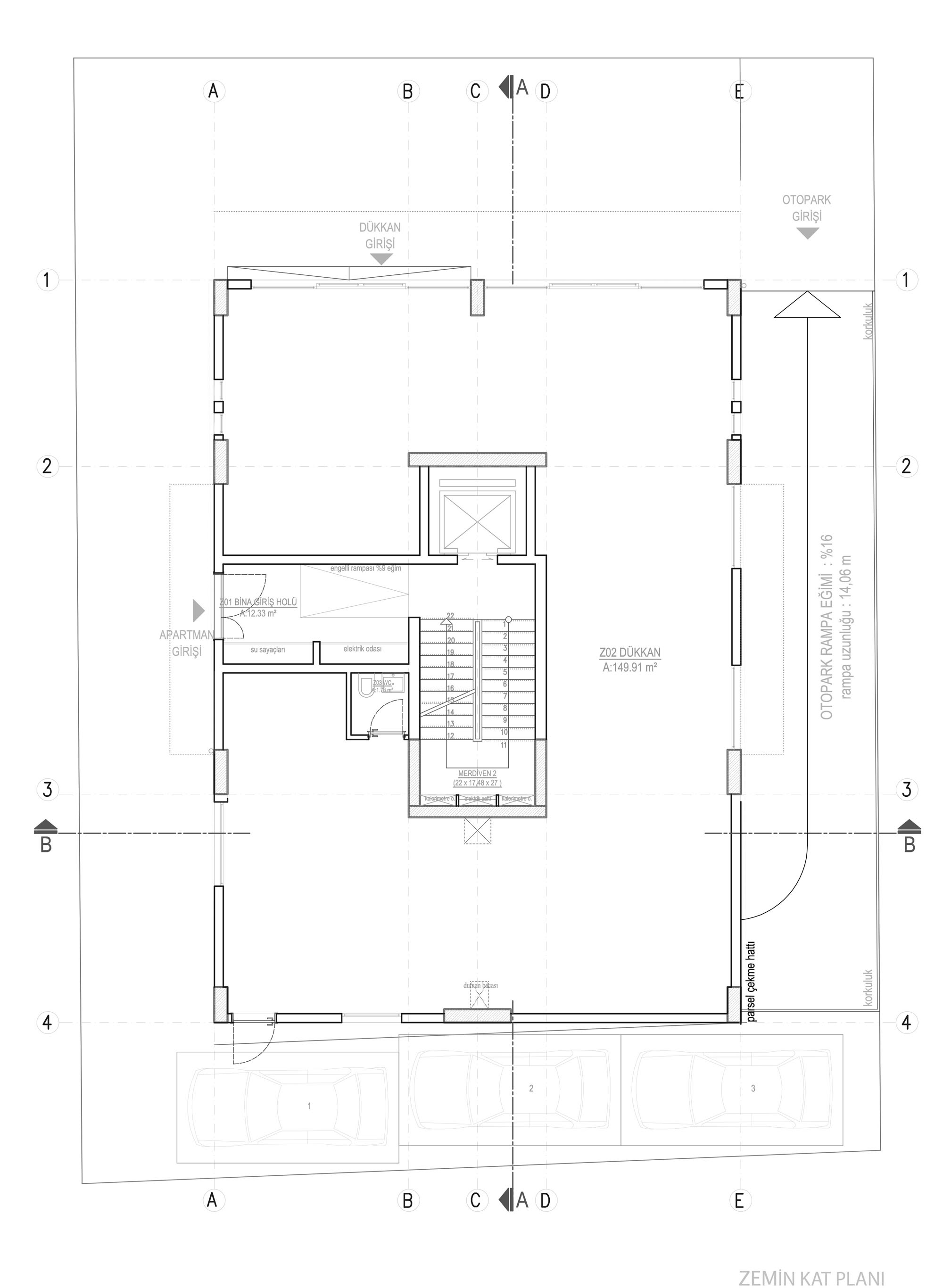
Ugur Apartmani
Proje Yeri: İzmir
Proje Ofisi: AtölyeSİM Mimarlık
Proje Tipi: Apartman
Proje Tipi Grubu: Konut
Tasarım Ekibi: Gözde Susam İnanç
Mimari Proje Ekibi: Vildan Bayar
Ana Yüklenici: İşcanlı & İnanç İnşaat Ortaklığı
İç Mekan Projesi: Emel Erdoğan, Nurdan Sümer
Uygulama Projesi: Vildan Bayar
Statik Projesi: Serdar Kırnaz
Mekanik Projesi: Metin Güres
Elektrik Projesi: Nuri Sezer
Tesisat Projesi: Metin Güres
Fotoğraf: Zeren + Mehmet Yasa Photography
Mimari Mesleki Kontrollük: Sait İşcanlı
Şantiye Yöneticisi: Ahmet İşcanlı
Proje Başlangıç Yılı: 2015
Proje Bitiş Yılı: 2016
İnşaat Başlangıç Yılı: 2017
İnşaat Bitiş Yılı: 2019
Arsa Alanı: 500
Toplam İnşaat Alanı: 1750