81/88
Paylaş
Resmi Orjinal Boyutunda Göster
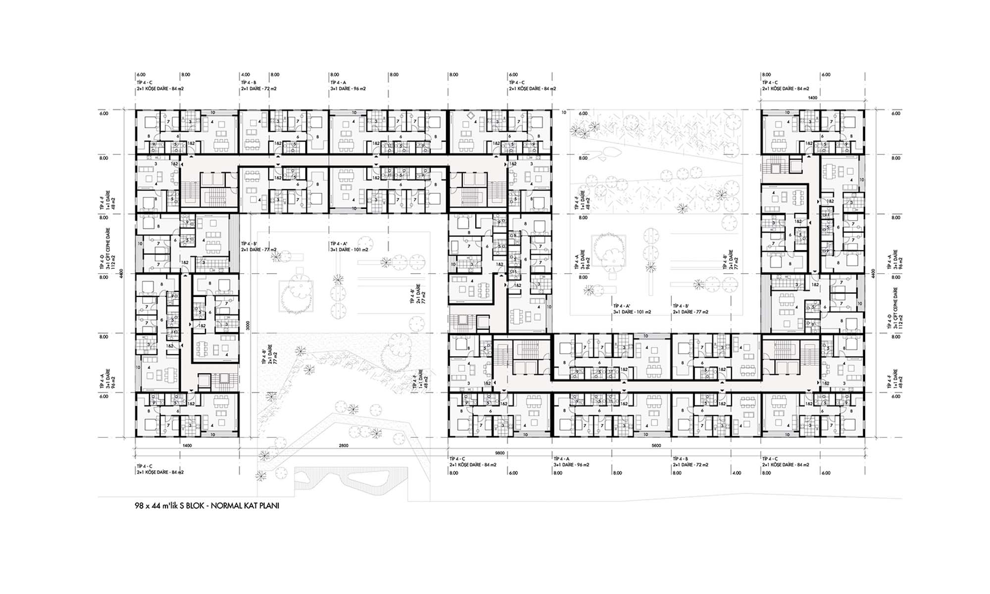
Eşdeğer Ödül, Plug Ofis, İğdeli Mimarlık, Gaziemir Aktepe ve Emrez Mahalleleri Kentsel Dönüşüm Proje Yarışması
Proje Yeri: İzmir, Gaziemir
Proje Ofisi: PLUG, İğdeli Mimarlık
Proje Tipi: Kentsel Tasarım
Proje Tipi Grubu: Eşdeğer Ödül
Tasarım Ekibi: Buşra Al, İlker İğdeli, Berrin Özdemir
Danışman: Adem Altıntaş, Sena İkiz
Yardımcı: Tolgahan Akbulut, Sine Yeşilkaya, Elif Gözlügöl, Ozan Çelik, Bihter Öztürk, Aykut İğdeli, Çağla Özardalı, Salih Özkan Dursun, Özge Taşar