3/3
Paylaş
Resmi Orjinal Boyutunda Göster
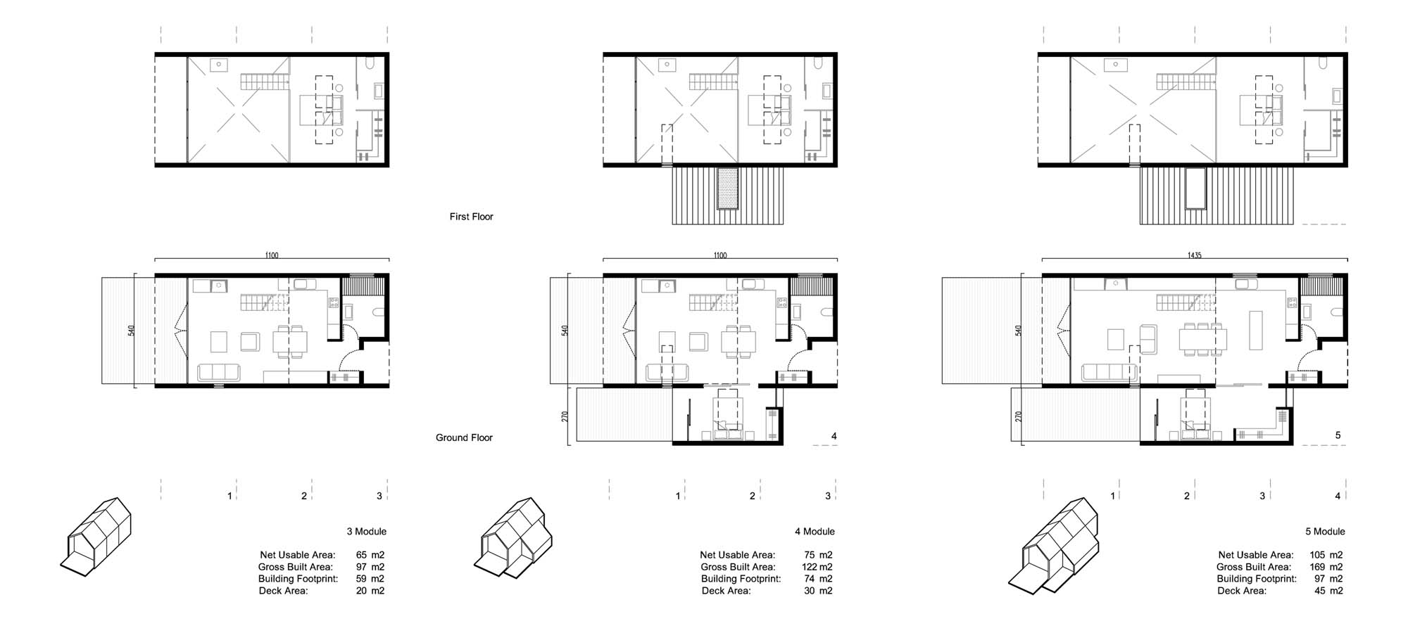
AE Evi
Proje Yeri: Sapanca, Sakarya
Proje Ofisi: Emre Çetinel Mimarlık
Proje Tipi: Tek Ev / Villa
Proje Tipi Grubu: Konut
Tasarım Ekibi: Emre Çetinel
İşveren: Proses Yapi
Yardımcı: Serdar İpek, Aydın Akyüz, Emirhan Özyer, Serhat Altınbilek
Ana Yüklenici: Proses Yapi
İç Mekan Projesi: Serdar İpek İç Mimarlık
Proje Başlangıç Yılı: 2020
Proje Bitiş Yılı: 2020
Arsa Alanı: 2.440 m2
Toplam İnşaat Alanı: 122 m²