16/26
Paylaş
Resmi Orjinal Boyutunda Göster
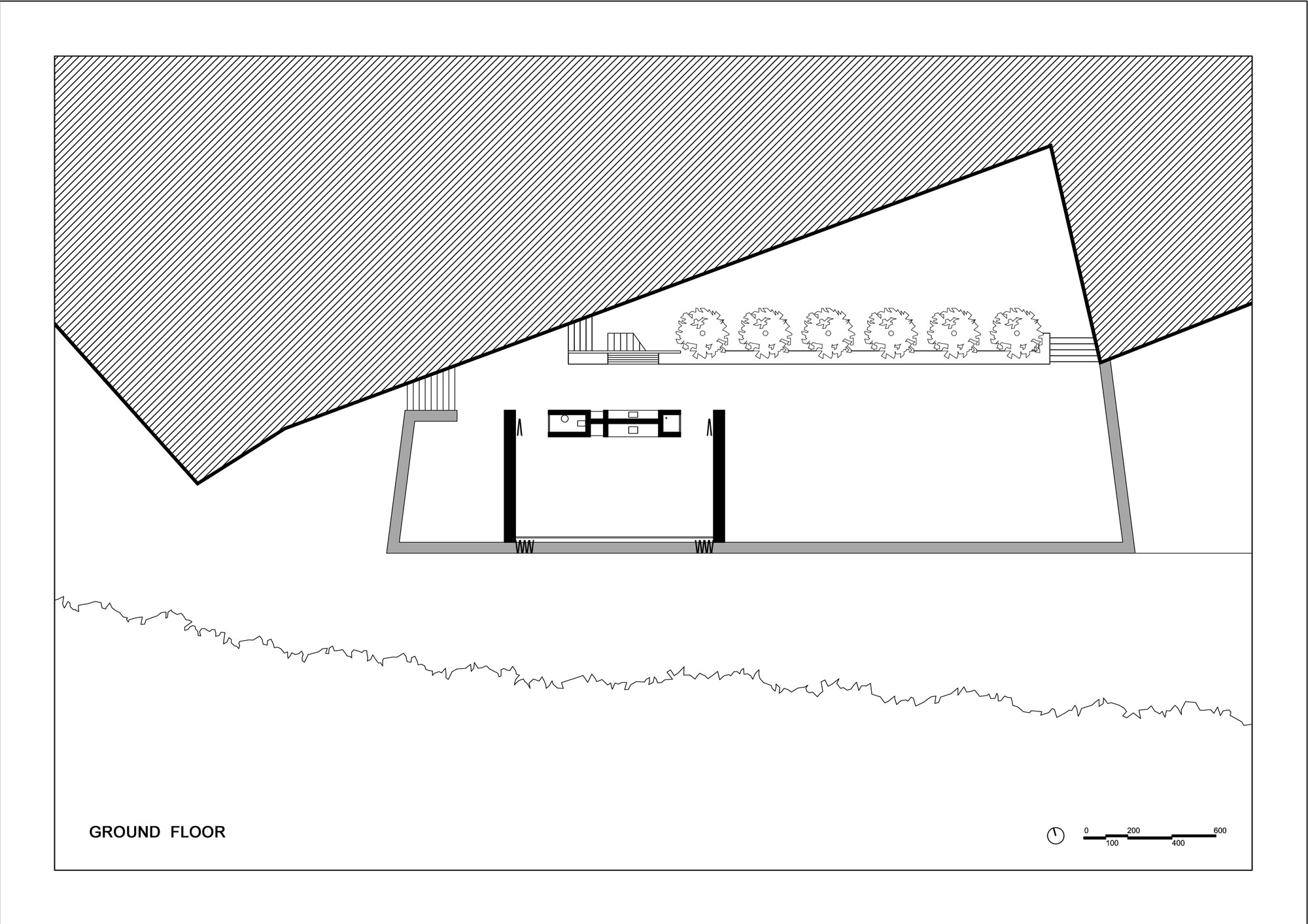
B2 Evi
Proje Yeri: Çanakkale
Proje Ofisi: Mimarlar ve Han Tümertekin
Proje Tipi: Tek Ev / Villa
Proje Tipi Grubu: Konut
Tasarım Ekibi: Han Tümertekin, Hayriye Sözen, Ahmet Önder, Hakan Tüzün Şengün, Eylem Erdinç
İşveren: Selman Bilal, Süha Bilal
Mekanik Projesi: İsmail Ildız
Elektrik Projesi: Adnan Gündüz
Fotoğraf: Cemal Emden,
Proje Başlangıç Yılı: 1999
Proje Bitiş Yılı: 1999
İnşaat Başlangıç Yılı: 1999
İnşaat Bitiş Yılı: 2001
Arsa Alanı: 600 m²
Toplam İnşaat Alanı: 150 m2