Plan
6/14
Paylaş
Resmi Orjinal Boyutunda Göster
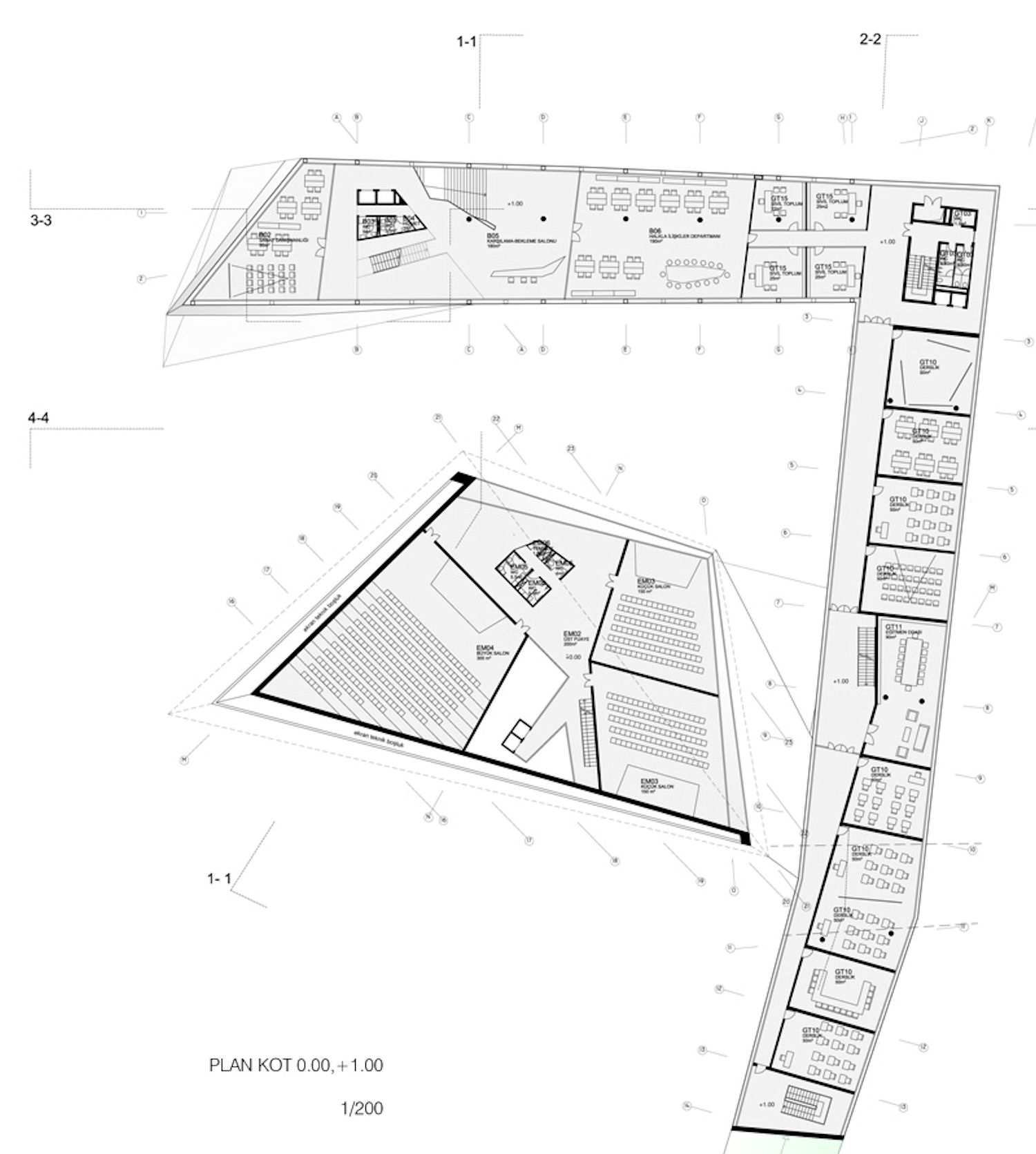
Çankaya Belediyesi Başkanlık Hizmet Binası, Sanat Merkezi ve Ulvi Cemal Erkin Konser Salonu Ulusal Mimari Proje Yarışması, 5. Mansiyon
Proje Yeri: Çankaya, Ankara
Proje Tipi Grubu: 5. Mansiyon
Tasarım Ekibi: Onur Sağkan, Hakan Karaman, Mihriban Duman, Erdem Tüzün
Danışman: Jacques Pocho, Müjdem Vural, Celal Çavuşoğlu, Erhan İşözen, Cem Ercan, Süleyman Emre Pusat, Mustafa Buğra Yerliyurt, Aslı Özçevik
Yardımcı: Yelta Köm, Hayrettin Günç, Erinç Okudan, Guillaume Rousseau