27/29
Paylaş
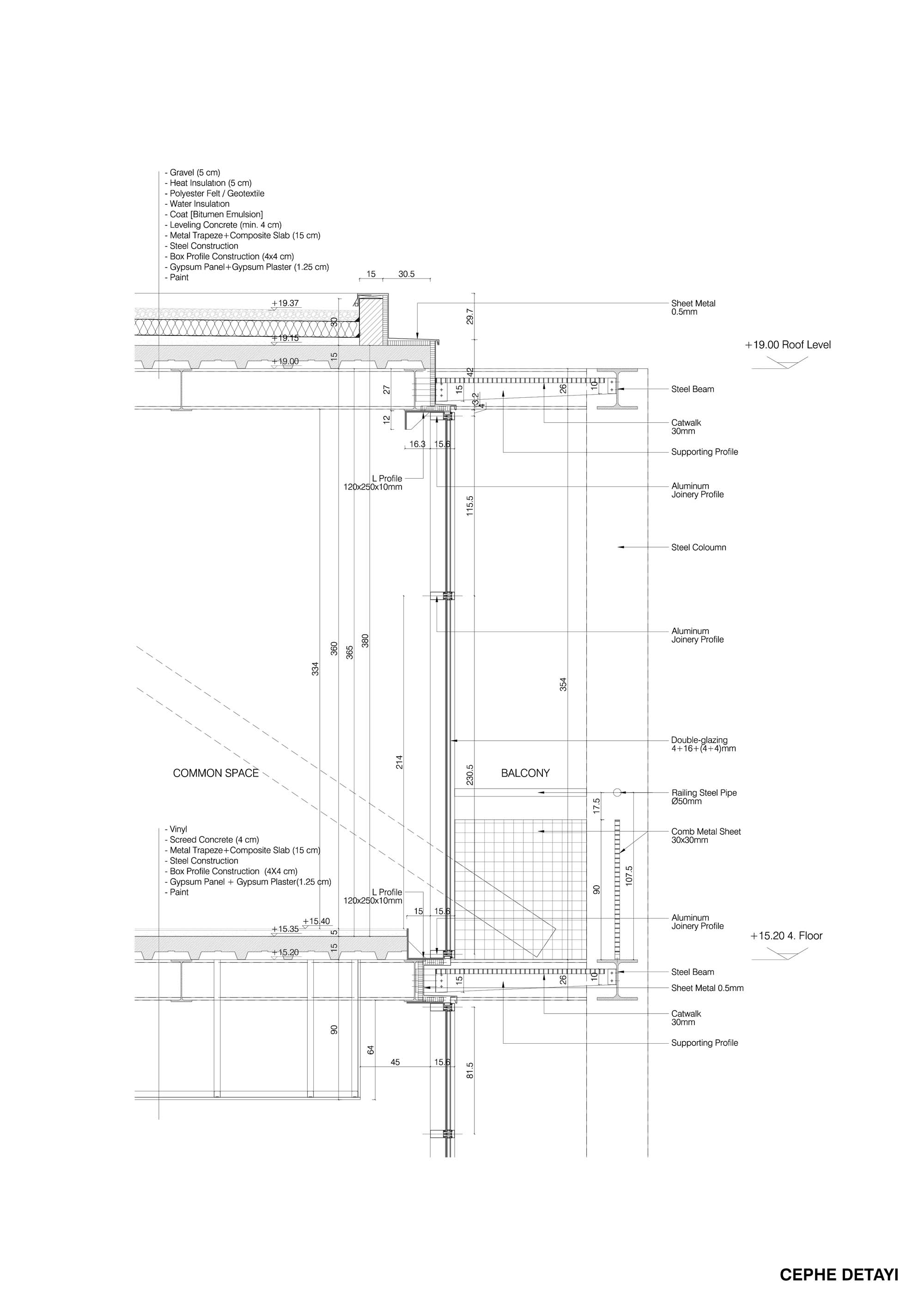
Resmi Orjinal Boyutunda Göster
Gemak Tersanesi Yönetim Binası
Proje Yeri: Altınova, Yalova
Proje Ofisi: CM Mimarlık
Proje Tipi: Ofis
Proje Tipi Grubu: Ticari
Tasarım Ekibi: Cem Sorguç
İşveren: Gemak Tersanesi
Yardımcı: Cüneyt Şentürk, Çiğdem Yalırsu, Tolga Yağlı, Deniz Gezgin
Ana Yüklenici: Gemak Tersanesi
Peyzaj Mimarlığı: Landworks
Statik Projesi: Özcihan Mühendislik
Mekanik Projesi: Ente Mühendislik
Elektrik Projesi: Tasarım Proje
Fotoğraf: Cemal Emden, Cem Sorguç
Proje Başlangıç Yılı: 2017
Proje Bitiş Yılı: 2019
İnşaat Başlangıç Yılı: 2018
İnşaat Bitiş Yılı: 2020
Toplam İnşaat Alanı: 3.240 m2