11/12
Paylaş
Resmi Orjinal Boyutunda Göster
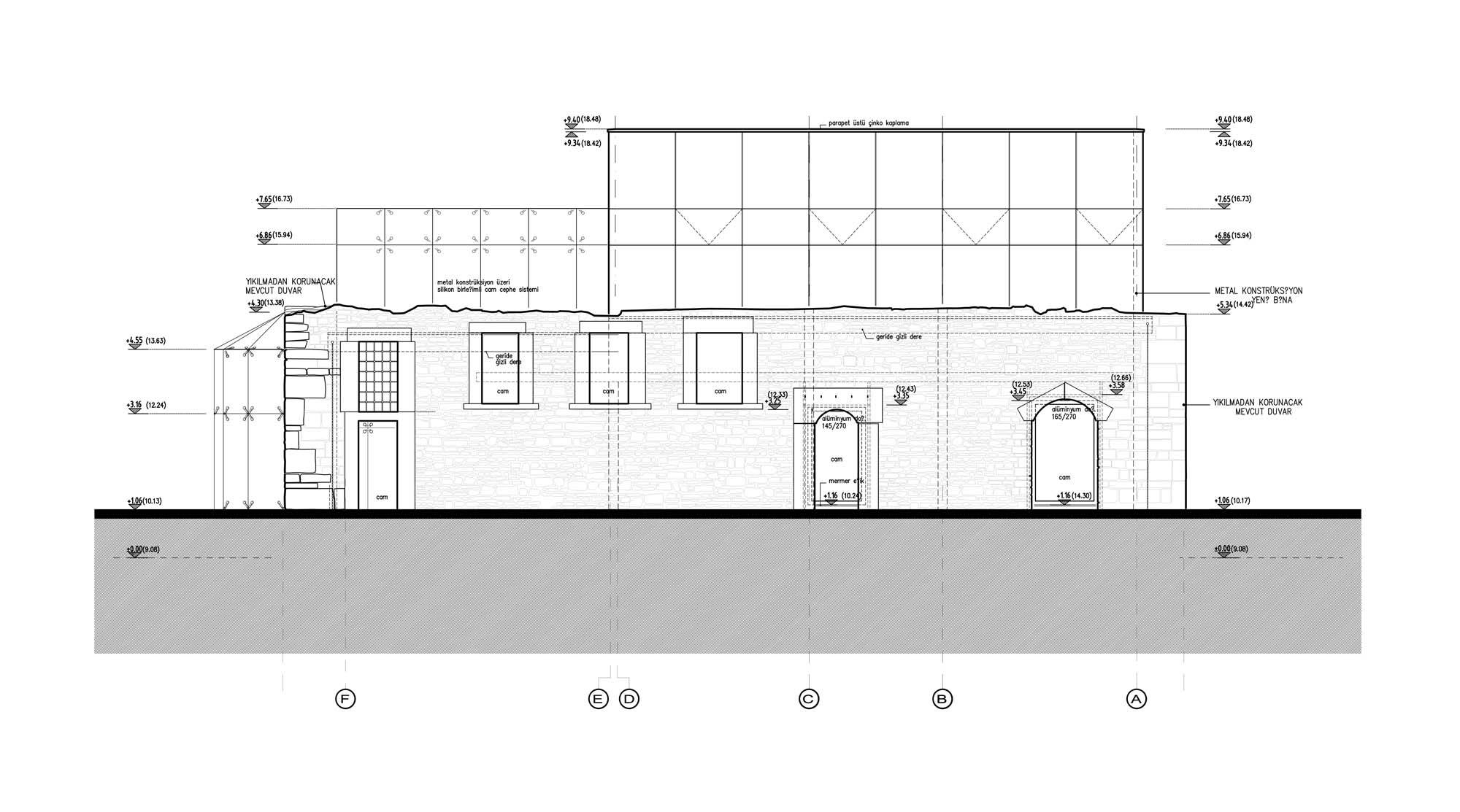
Adnan Büyükdeniz Dijital Kütüphane
Proje Yeri: Esenler, İstanbul
Proje Ofisi: M-Ofis Mimarlık
Proje Tipi: Kütüphane
Proje Tipi Grubu: Kültür
Tasarım Ekibi: Serkan İğdelipınar, A. Sinan Timoçin
İşveren: Esenler Belediyesi
Yardımcı: Fırat Çoban
Ana Yüklenici: Hamak İnşaat
Statik Projesi: Dilmer Mühendislik
Fotoğraf: Gürkan Akay
Proje Başlangıç Yılı: 2009
Proje Bitiş Yılı: 2009
İnşaat Başlangıç Yılı: 2009
İnşaat Bitiş Yılı: 2009
Arsa Alanı: 900 m2
Toplam İnşaat Alanı: 550 m2