30/32
Paylaş
Resmi Orjinal Boyutunda Göster
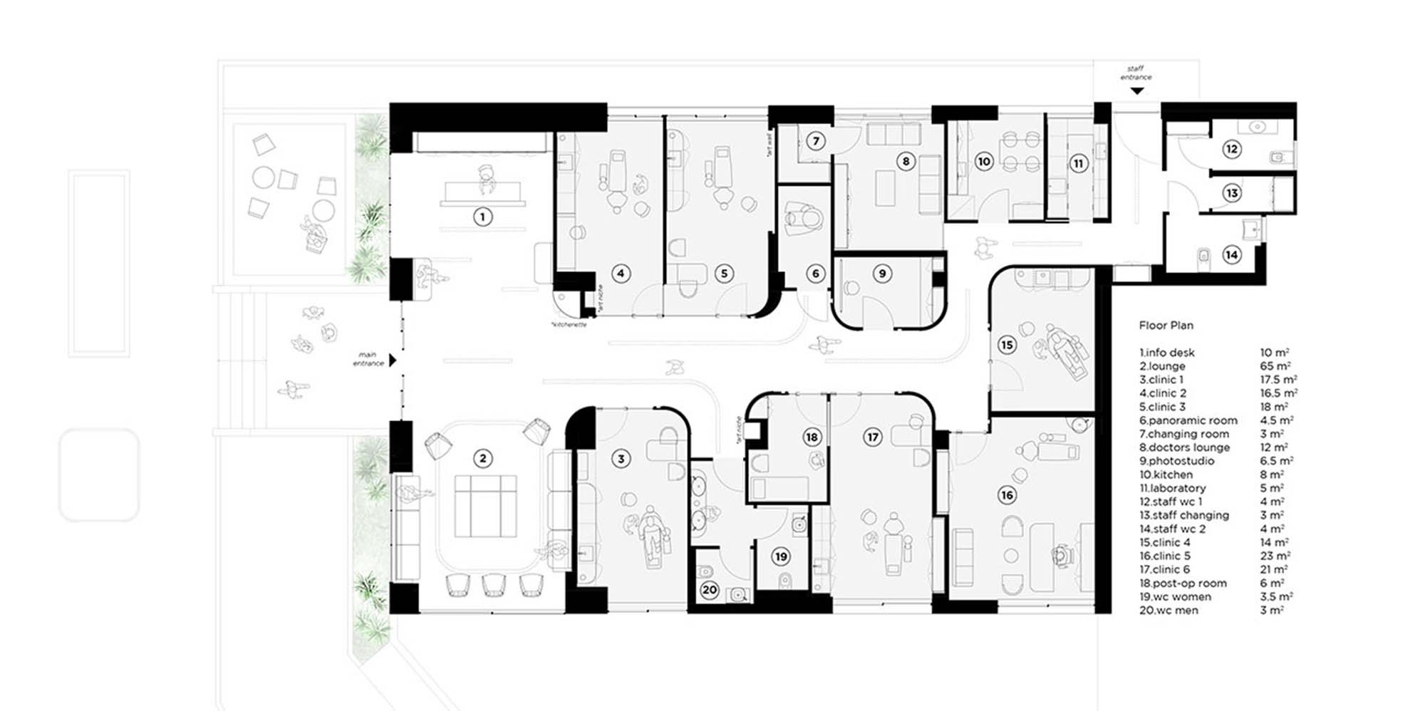
Klinik 29
Proje Yeri: İstanbul, Üsküdar
Proje Ofisi: Slash Architects
Proje Tipi: Hastane / Poliklinik
Proje Tipi Grubu: Sağlık
Tasarım Ekibi: İpek Baycan Magriso, Şule Ertürk, Nergis Kahraman
İşveren: Klinik 29 Özel Ağız ve Diş Polikliniği
Ana Yüklenici: Aks Mimarlık İnşaat
Fotoğraf: ALTKAT Architectural Photography
Proje Başlangıç Yılı: 2019
Proje Bitiş Yılı: 2019
İnşaat Başlangıç Yılı: 2019
İnşaat Bitiş Yılı: 2020
Toplam İnşaat Alanı: 370 m²