36/43
Paylaş
Resmi Orjinal Boyutunda Göster
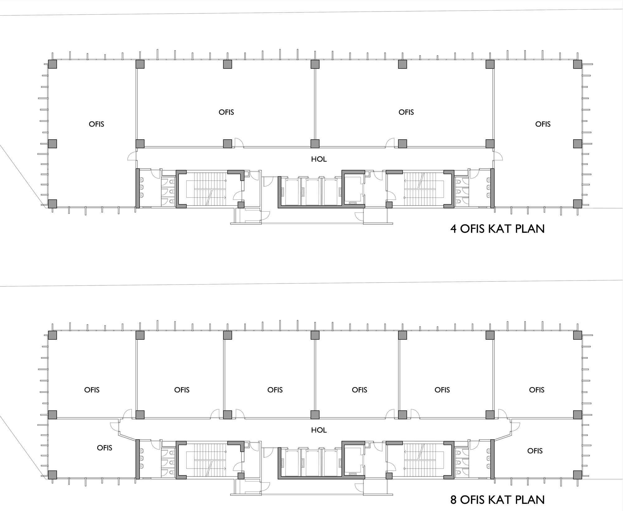
EnPlaza
Proje Yeri: İstanbul, Ümraniye
Proje Ofisi: BFTA Mimarlık
Proje Tipi: Ofis
Proje Tipi Grubu: Ticari
Tasarım Ekibi: Fuat Taşkıranoğlu, Beylem Taşkıranoğlu, Miguel Zapatero, Oğuzhan Solmaz, Ece Yurdakul
İşveren: Enyapı-Akyapı-Optimal Proje Ortaklığı
Statik Projesi: Mustafa Sak
Mekanik Projesi: Cemalettin Sönmez
Elektrik Projesi: Mustafa Aydın
Fotoğraf: Gürkan Akay
İnşaat Bitiş Yılı: 2020
Toplam İnşaat Alanı: 20.000 m2