14/21
Paylaş
Resmi Orjinal Boyutunda Göster
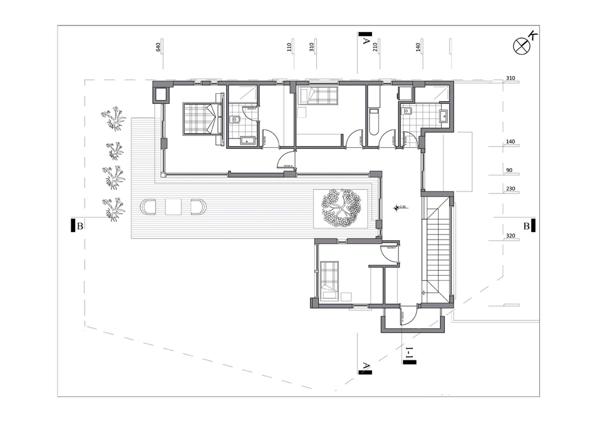
İltaş Evi
Proje Yeri: Adana
Proje Ofisi: Eren Tümer Mimarlık Ofisi [ETMO]
Proje Tipi: Tek Ev / Villa
Proje Tipi Grubu: Konut
Tasarım Ekibi: Eren Tümer, Ece Sultan Karacık
Statik Projesi: Tuna Sağol
Mekanik Projesi: Mahmut Kaya, KPD Mühendislik
Elektrik Projesi: Selçuk Özdoğan, Tapan Mühendislik
Tesisat Projesi: Mahmut Kaya, KPD Mühendislik
Proje Başlangıç Yılı: 2020
İnşaat Başlangıç Yılı: 2020
Arsa Alanı: 590 m²
Toplam İnşaat Alanı: 198 m2