21/22
Paylaş
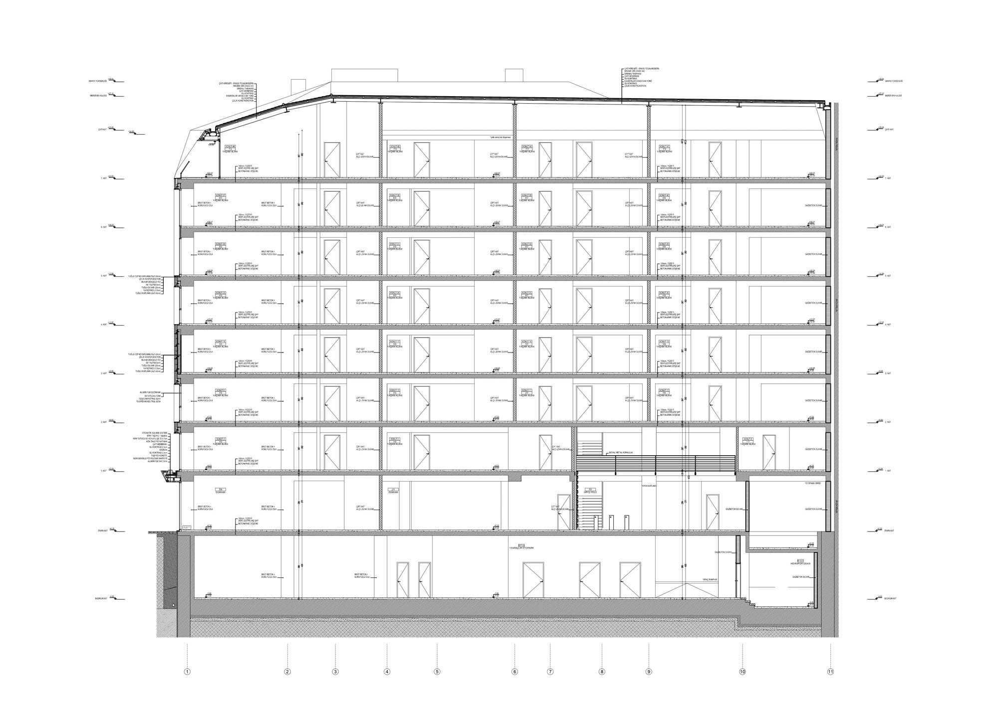
Resmi Orjinal Boyutunda Göster
The Mercer
Project Location: Konak, İzmir
Project Office: Elmacı Mimarlık
Project Type: Offices
Proje Tipi Grubu: Commercial
Tasarım Ekibi: Mennan Elmacı, Hüseyin Boyacı, Senem Okşar Çelik, Aslı Şahin, Selin Özkan, Firuze İncekaş, Merve Başkut
Employer: Vela Yapı
Ana Yüklenici: Vela Yapı
Structural Project: Epsilon Proje, Aziz Baburhan
Mechanical Project: Burcu Kocaova, Hakan Kocaova
Electrical Project: Karayel Mühendislik, Sinan Karayel
Çelik Projesi: Epsilon Proje, Aziz Baburhan
Photography: Cemal Emden
Architectural Supervision: Elmacı Mimarlık
Construction Site Manager: Ali Rıza Korkusuz
Project Start Date: 2015
Project End Date: 2016
Construction Start Date: 2016
Construction End Date: 2019
Building Plot Area: 1,050 m²
Total Construction Area: 11.000 m²