9/14
Paylaş
Resmi Orjinal Boyutunda Göster
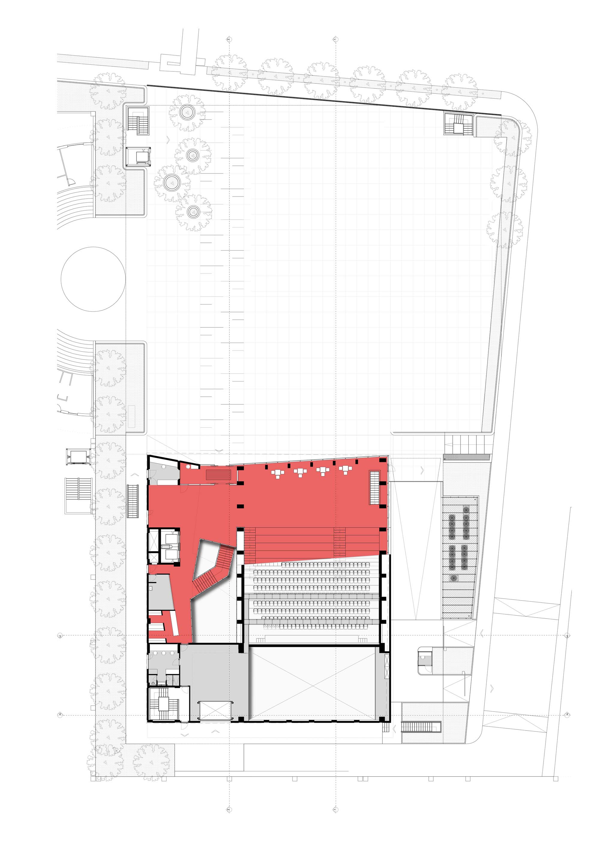
Buca Gösteri Sanatları Merkezi
Proje Yeri: Buca, İzmir
Proje Ofisi: M artı D Mimarlık
Proje Tipi: Kültür Merkezi
Proje Tipi Grubu: Kültür
Tasarım Ekibi: Metin Kılıç, Dürrin Süer
İşveren: Buca Belediyesi
Danışman: Osman Uzgören
Yardımcı: Ali Can Helvacıoğlu, Engin Yavuz
Statik Projesi: Methal Mühendislik, Cemal Çoşak
Mekanik Projesi: Arel Mühendislik, Kamil Olgaç, NU Mekanik, Çağlar Karadağ
Elektrik Projesi: Onmuş Elektrik, Cihan Onmuş, Pelin Dündar
Akustik Projesi: Mahmut Sözer, Sonic Design
Proje Başlangıç Yılı: 2017
Proje Bitiş Yılı: 2017
İnşaat Başlangıç Yılı: 2018
Toplam İnşaat Alanı: 3.362 m2