14/20
Paylaş
Resmi Orjinal Boyutunda Göster
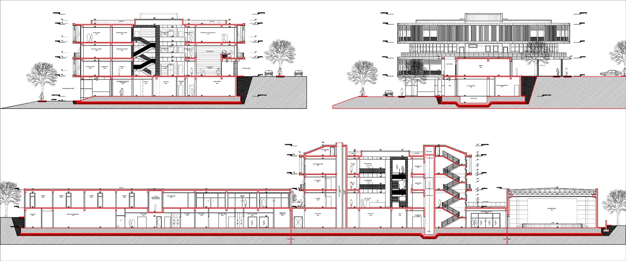
ŞUOSB İdari Bina ve Sosyal Tesisleri
Proje Yeri: Şanlıurfa
Proje Ofisi: FTB Mimarlık
Proje Tipi: Ofis
Proje Tipi Grubu: Ticari
Tasarım Ekibi: Fatih Babaoğlu
İşveren: Şanlıurfa Organize Sanayi Bölge Müdürlüğü
Yardımcı: Kadir Babaoğlu, Volkan Kaya
Ana Yüklenici: Şanlıurfa Organize Sanayi Bölge Müdürlüğü
Proje Başlangıç Yılı: 2015
Proje Bitiş Yılı: 2015
İnşaat Başlangıç Yılı: 2017
Arsa Alanı: 4.680 m²
Toplam İnşaat Alanı: 4.200 m²