15/19
Paylaş
Resmi Orjinal Boyutunda Göster
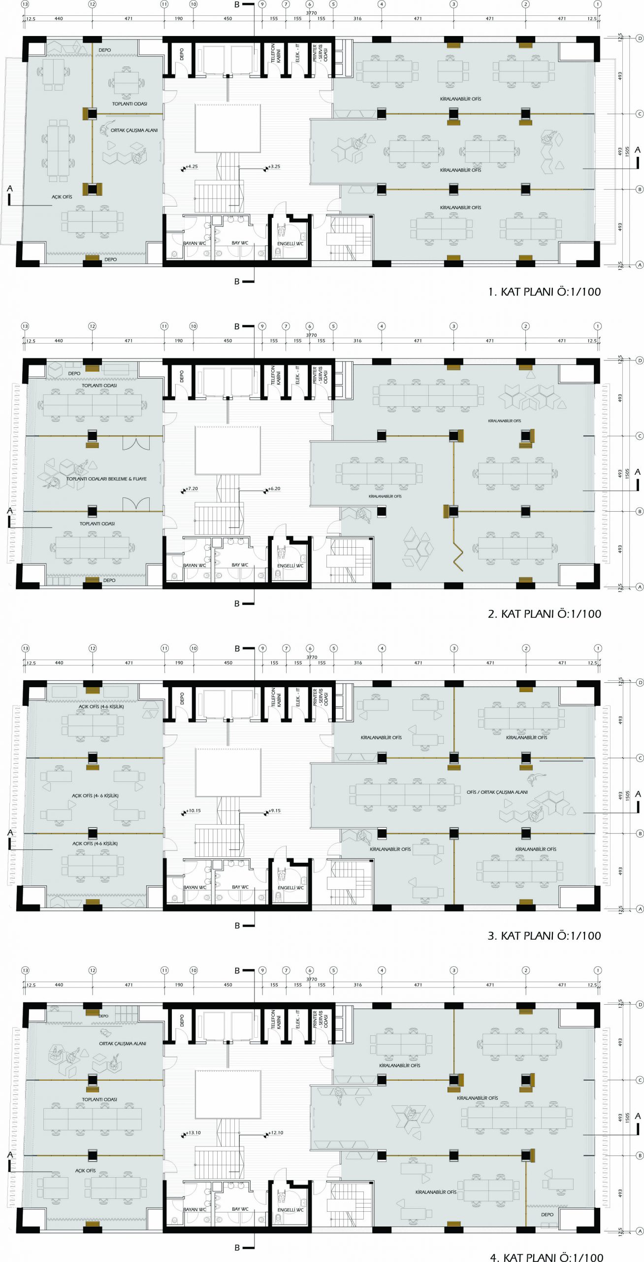
3 Odul Izmir Ticaret Odası Binası Yenileme Fikir Projesi Yarışması
Proje Yeri: İzmir
Proje Ofisi: AtölyeSİM Mimarlık
Proje Tipi: Ofis
Proje Tipi Grubu: 3. Ödül
Tasarım Ekibi: Gözde Susam İnanç, Suzan İlhan, Atahan Topçu
Danışman: Arzu Cilasun Kunduracı, Alican Kabataş, İhsan Çalış, Berat Güner, Ayşe Gökçe Susam Nazlıcan, Doruk Şensoy