71/75
Paylaş
Resmi Orjinal Boyutunda Göster
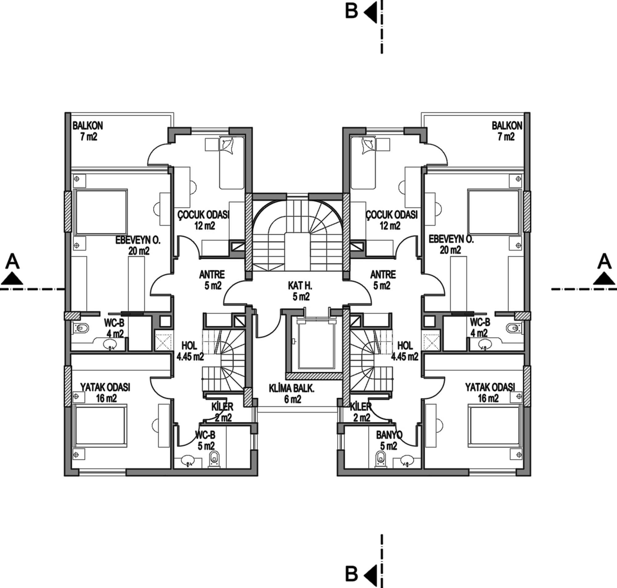
CASA GRANDE Konutları
Proje Yeri: Antalya
Proje Ofisi: Keyarch Mimarlık
Proje Tipi: Konut Sitesi / Grubu
Proje Tipi Grubu: Konut
Tasarım Ekibi: Özlem Yıldız Kaya
İşveren: AKG İnşaat Yatırım İnovasyon
Yardımcı: Işınsu Deniz Türk
Ana Yüklenici: AKG İnşaat Yatırım İnovasyon
Statik Projesi: HBS Mühendislik
Mekanik Projesi: Vefa Mühendislik
Elektrik Projesi: HBS Mühendislik
Proje Başlangıç Yılı: 2019
Proje Bitiş Yılı: 2019
İnşaat Başlangıç Yılı: 2019
Toplam İnşaat Alanı: 7.779 m2, 16.500 m2