20/23
Paylaş
Resmi Orjinal Boyutunda Göster
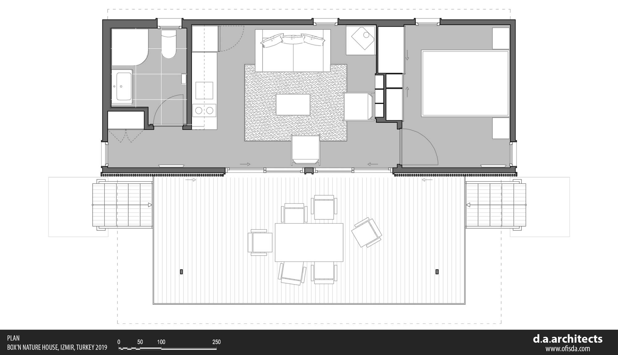
Box n Nature House 01
Proje Yeri: İzmir
Proje Ofisi: D.A.Mimarlık
Proje Tipi: Tek Ev / Villa
Proje Tipi Grubu: Konut
Tasarım Ekibi: Durmuş Ali Kasap
Yardımcı: Gizem Güler, Nurullah Kılınç
Ana Yüklenici: Nurullah Kılınç
Statik Projesi: Serdar Kırnaz, LUN Mühendislik
Fotoğraf: Zeren + Mehmet Yasa Photography
Proje Başlangıç Yılı: 2019
Proje Bitiş Yılı: 2019
İnşaat Başlangıç Yılı: 2019
İnşaat Bitiş Yılı: 2020
Arsa Alanı: 33.000 m2
Toplam İnşaat Alanı: 60 m²