55/58
Paylaş
Resmi Orjinal Boyutunda Göster
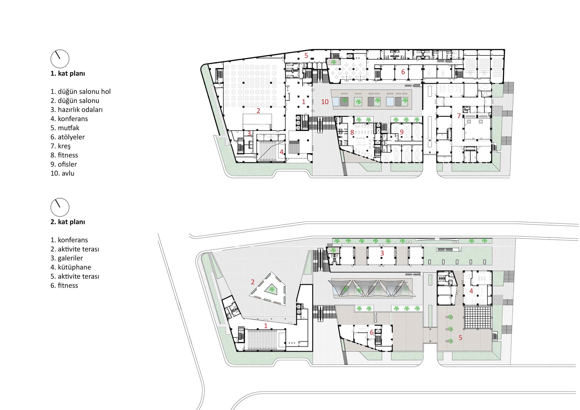
Türkan Saylan Çağdaş Yaşam Merkezi
Proje Yeri: Muğla
Proje Ofisi: Bcn Design Studio
Proje Tipi: Kültür Merkezi, Sosyal Tesis
Proje Tipi Grubu: Kamu, Kültür
Tasarım Ekibi: Atıl Beçin, Dilara Has Gökdoğan
İşveren: Muğla Büyükşehir Belediyesi
Yardımcı: Cemil Uzunköprü, Altan Günvaran
Ana Yüklenici: Makro Yol Yapı Sanayi ve Ticaret AŞ
Peyzaj Mimarlığı: Muğla Büyükşehir Belediyesi
İç Mekan Projesi: Muğla Büyükşehir Belediyesi
Konsept Tasarımı: Bcn Design Studio
Uygulama Projesi: Bcn Design Studio
Cephe Tasarımı: Bcn Design Studio
Statik Projesi: Hakan Mühendislik, Hakan Öztürk
Mekanik Projesi: Değer Mühendislik, Değer Özkan
Elektrik Projesi: Türk Mühendislik, Suat Türk
Çelik Projesi: Hakan Mühendislik, Hakan Öztürk
Fotoğraf: Gürkan Akay
Proje Başlangıç Yılı: 2016
Proje Bitiş Yılı: 2017
İnşaat Başlangıç Yılı: 2017
İnşaat Bitiş Yılı: 2021
Arsa Alanı: 11.356 m2
Toplam İnşaat Alanı: 35.898 m2