32/34
Paylaş
Resmi Orjinal Boyutunda Göster
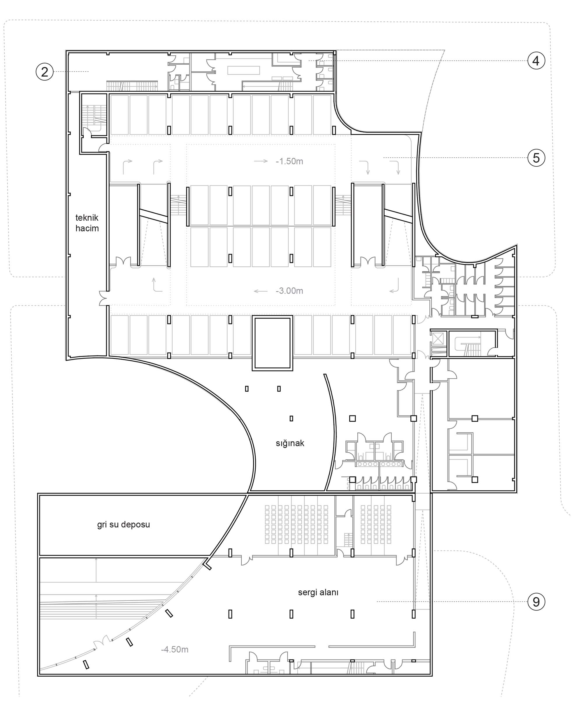
Tutgut Reis Yaşam Merkezi
Proje Yeri: Bodrum, Muğla
Proje Ofisi: Bcn Design Studio
Proje Tipi: Kültür Merkezi, Sosyal Tesis
Proje Tipi Grubu: Kamu, Kültür
Tasarım Ekibi: Atıl Beçin, Susanne Boss, Cemil Uzunköprü, Altan Günvaran
İşveren: Muğla Büyükşehir Belediyesi
Danışman: Eşber Yahyabeyoğlu, Soner Şimşek
Ana Yüklenici: Lik Yapı
Proje Yöneticisi: Atıl Beçin
Aydınlatma Projesi: Matrix
Grafik Tasarım: Susanne Boss
Statik Projesi: AG Proje
Mekanik Projesi: Değer Mühendislik
Elektrik Projesi: Ege Mühendislik
Tesisat Projesi: Ege Mühendislik
Çelik Projesi: AG Proje
Proje Başlangıç Yılı: 2017
Proje Bitiş Yılı: 2018
İnşaat Başlangıç Yılı: 2019
Arsa Alanı: 8.630 m2
Toplam İnşaat Alanı: 7.833 m2