25/26
Paylaş
Resmi Orjinal Boyutunda Göster
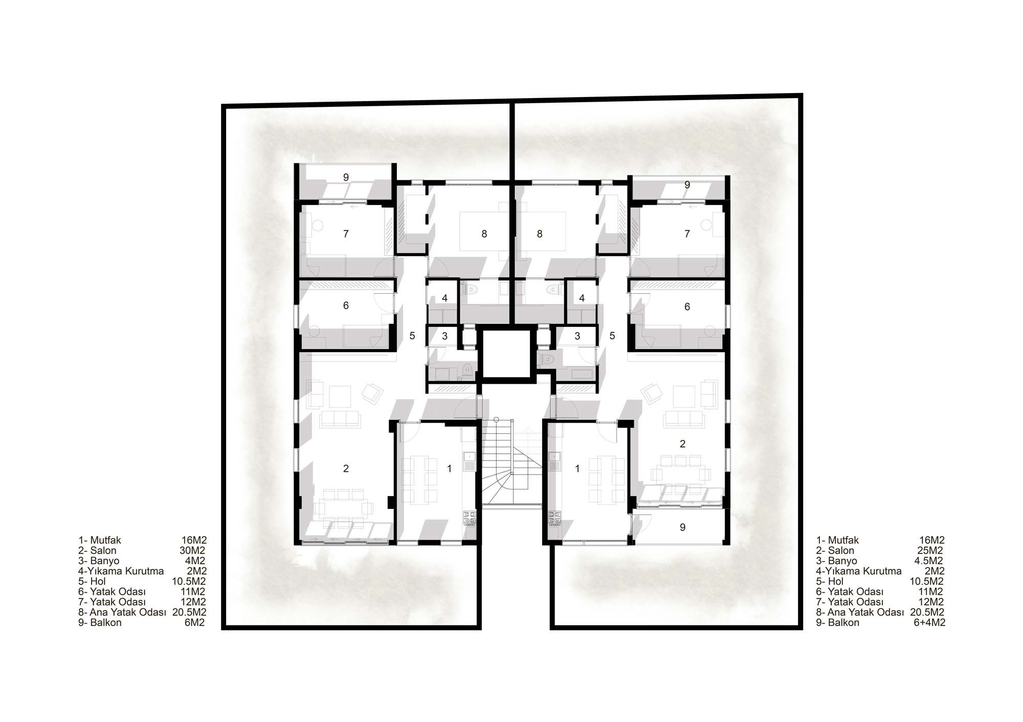
Deniz Apartmanı
Proje Yeri: Denizli
Proje Ofisi: Semih Gul Mimarlik
Proje Tipi: Apartman
Proje Tipi Grubu: Konut
Tasarım Ekibi: Bünyamin Semih Gül
İşveren: Halil Gül İnşaat
Ana Yüklenici: Halil Gül İnşaat
Statik Projesi: Oğuz Yılmaz
Mekanik Projesi: Demet Çil Bakır
Elektrik Projesi: Şazimet Köse
Tesisat Projesi: Demet Çil Bakır
Proje Başlangıç Yılı: 2019
Proje Bitiş Yılı: 2019
İnşaat Başlangıç Yılı: 2019
İnşaat Bitiş Yılı: 2020
Arsa Alanı: 523 m2
Toplam İnşaat Alanı: 993 m2