38/39
Paylaş
Resmi Orjinal Boyutunda Göster
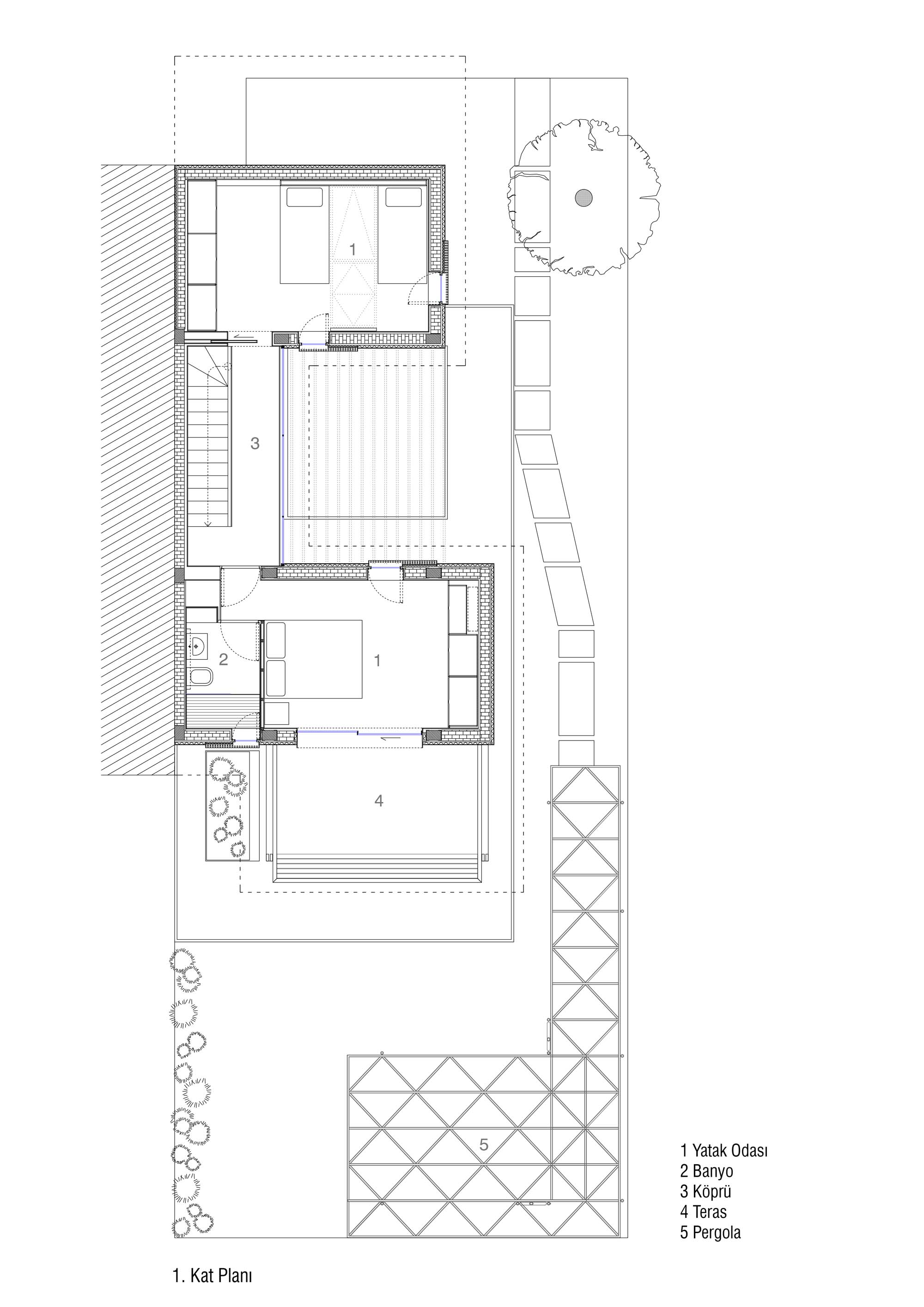
Özbinar Evi
Proje Yeri: Datça, Muğla
Proje Ofisi: Acararch
Proje Tipi: Tek Ev / Villa
Proje Tipi Grubu: Konut
Tasarım Ekibi: Emre Açar, Yunus Özdemir, Çağrı Helvacıoğlu Aydoğu
Ana Yüklenici: Acararch
Toplam İnşaat Alanı: 110 m²