18/20
Paylaş
Resmi Orjinal Boyutunda Göster
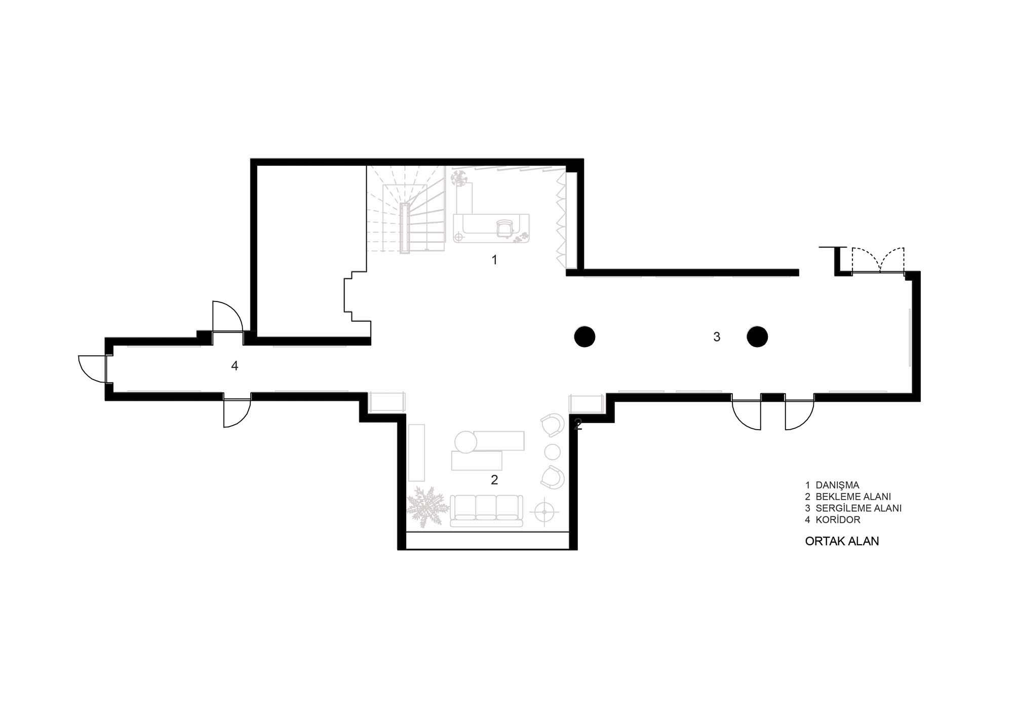
Proje No3
Proje Yeri: Bahçelievler, İstanbul
Proje Ofisi: Work of Arch
Proje Tipi: Ofis
Proje Tipi Grubu: Ticari
Tasarım Ekibi: Aslı Eğilmezler, Güven Erman
Ana Yüklenici: Work of Arch
Proje Başlangıç Yılı: 2019
Proje Bitiş Yılı: 2020
İnşaat Başlangıç Yılı: 2020
Toplam İnşaat Alanı: 350, 350 m²