15/16
Paylaş
Resmi Orjinal Boyutunda Göster
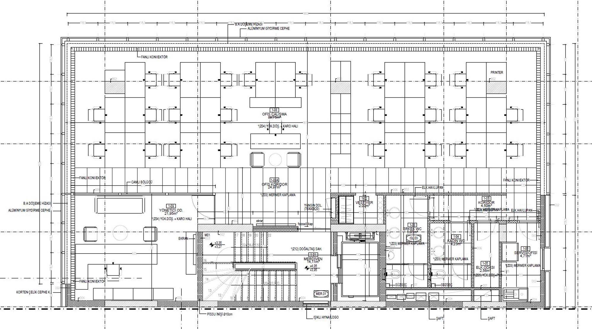
Pirnus10 Yönetim Binası ve Ofisleri
Proje Yeri: Esentepe, İstanbul
Proje Ofisi: Kayabay Architecture
Proje Tipi: Ofis
Proje Tipi Grubu: Ticari
Tasarım Ekibi: Özgür Kayabay
İşveren: Alnus Yatırım
Danışman: Ferit Akşit
Ana Yüklenici: Eral İnşaat
Statik Projesi: Cüneyt Eskimumcu
Mekanik Projesi: Detay Mühendislik
Elektrik Projesi: Onur Elektrik
Tesisat Projesi: Detay Mühendislik
Proje Başlangıç Yılı: 2016
Proje Bitiş Yılı: 2018
İnşaat Başlangıç Yılı: 2016
İnşaat Bitiş Yılı: 2018
Arsa Alanı: 410 m²
Toplam İnşaat Alanı: 2,000 m²