34/36
Paylaş
Resmi Orjinal Boyutunda Göster
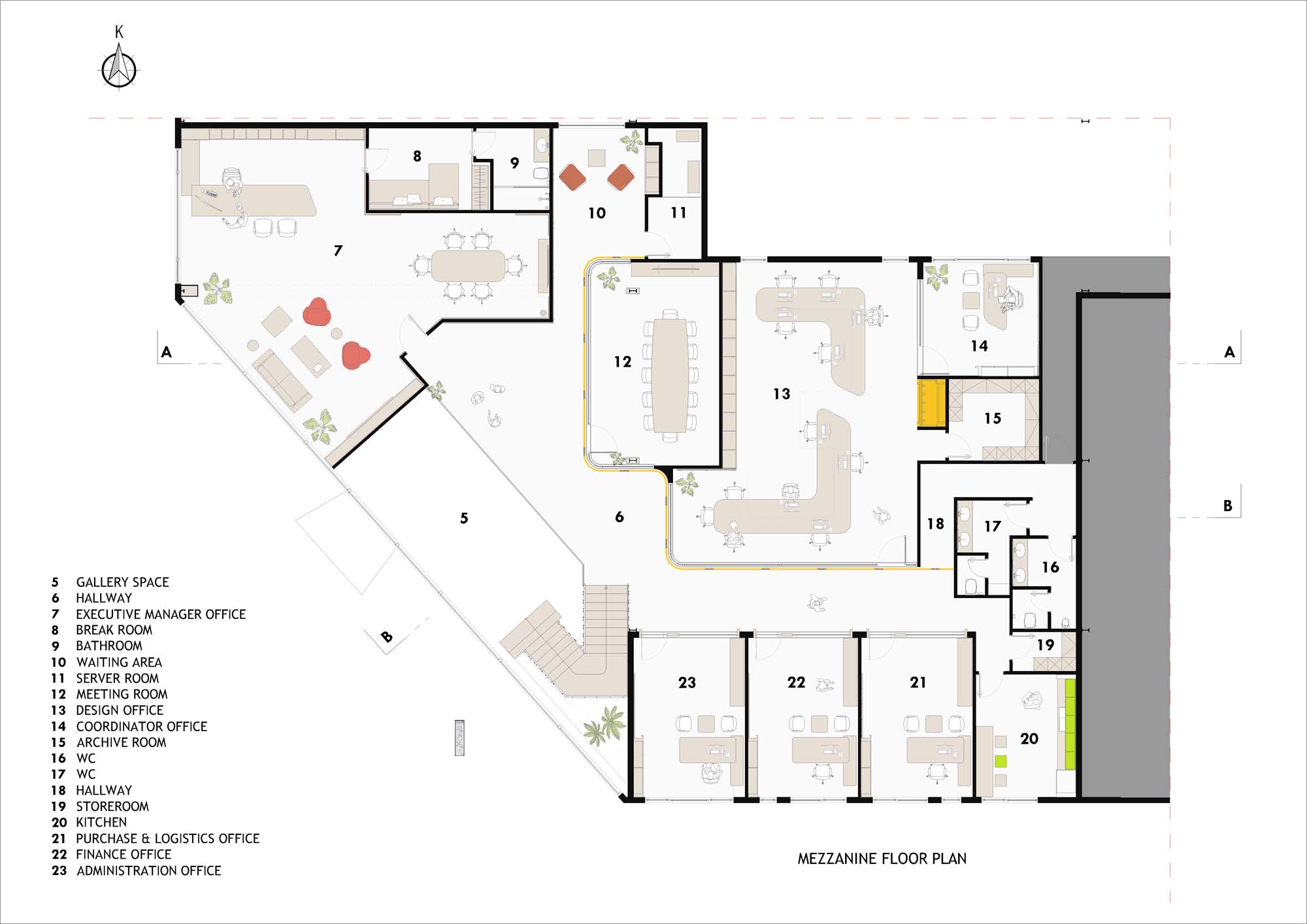
U4 Marine Yönetim Ofisi
Project Location: Antalya, Konyaaltı
Project Office: KST Mimarlık
Project Type: Offices
Proje Tipi Grubu: Commercial
Tasarım Ekibi: Kemal Serkan Tokis
Employer: U4 Marine & Interiors
Yardımcı: Gürkan Karakuş, Beste Yavuz Karakuş, Kaan Zaman, Gülhan Arıkan
Ana Yüklenici: KST Mimarlık
Photography: Doğa Yusuf Dökdök
Project Start Date: 2019
Project End Date: 2019
Construction Start Date: 2019
Construction End Date: 2020
Total Construction Area: 1.100 m2