19/43
Paylaş
Resmi Orjinal Boyutunda Göster
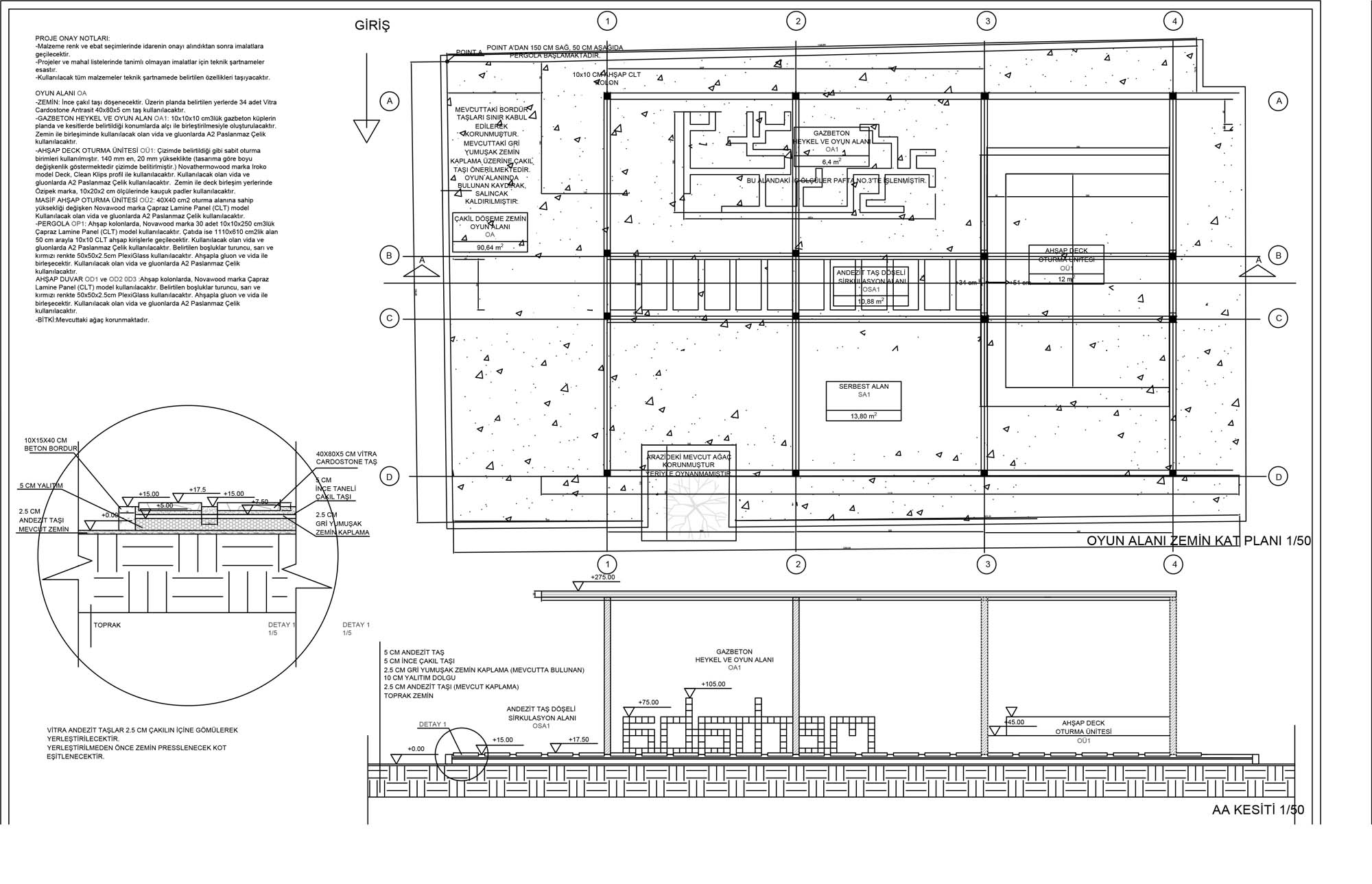
Gençlik Parkı Etkinlik Alanı
Proje Yeri: Ankara, Altındağ
Proje Ofisi: AnkaraAks
Proje Tipi: Park
Proje Tipi Grubu: Peyzaj Tasarımı, Kentsel Tasarım
Tasarım Ekibi: Aysu Fatma Kuştaş, Bahar Dingin, Berkutay Ali Coşkun, Cemre Gökpınar, Elif Dilan Nadir, Merve Şanlı, Zeynep Ünsal
İşveren: Ankara Büyükşehir Belediyesi
Proje Başlangıç Yılı: 2020
Proje Bitiş Yılı: 2020
İnşaat Başlangıç Yılı: 2020
İnşaat Bitiş Yılı: 2020
Arsa Alanı: 1.095 m2
Toplam İnşaat Alanı: 400 m2