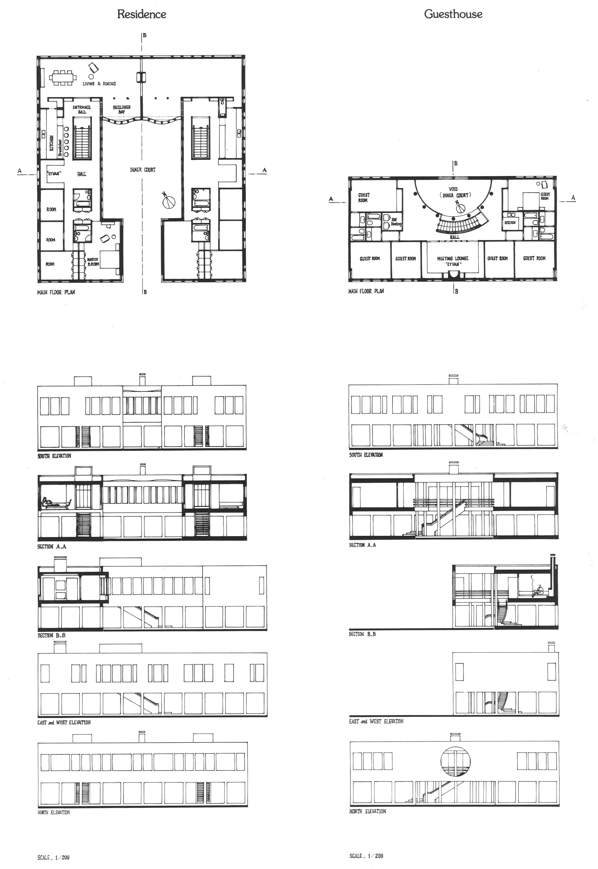
sagraresidence02.png
10/11
Paylaş
Resmi Orjinal Boyutunda Göster
Sagra Evi
Project Location: Ordu
Project Type: Single House
Proje Tipi Grubu: Konut
Tasarım Ekibi: Mehmet Konuralp, Salih Sağlamer
Construction Start Date: 1978
Construction End Date: 1979