27/30
Paylaş
Resmi Orjinal Boyutunda Göster
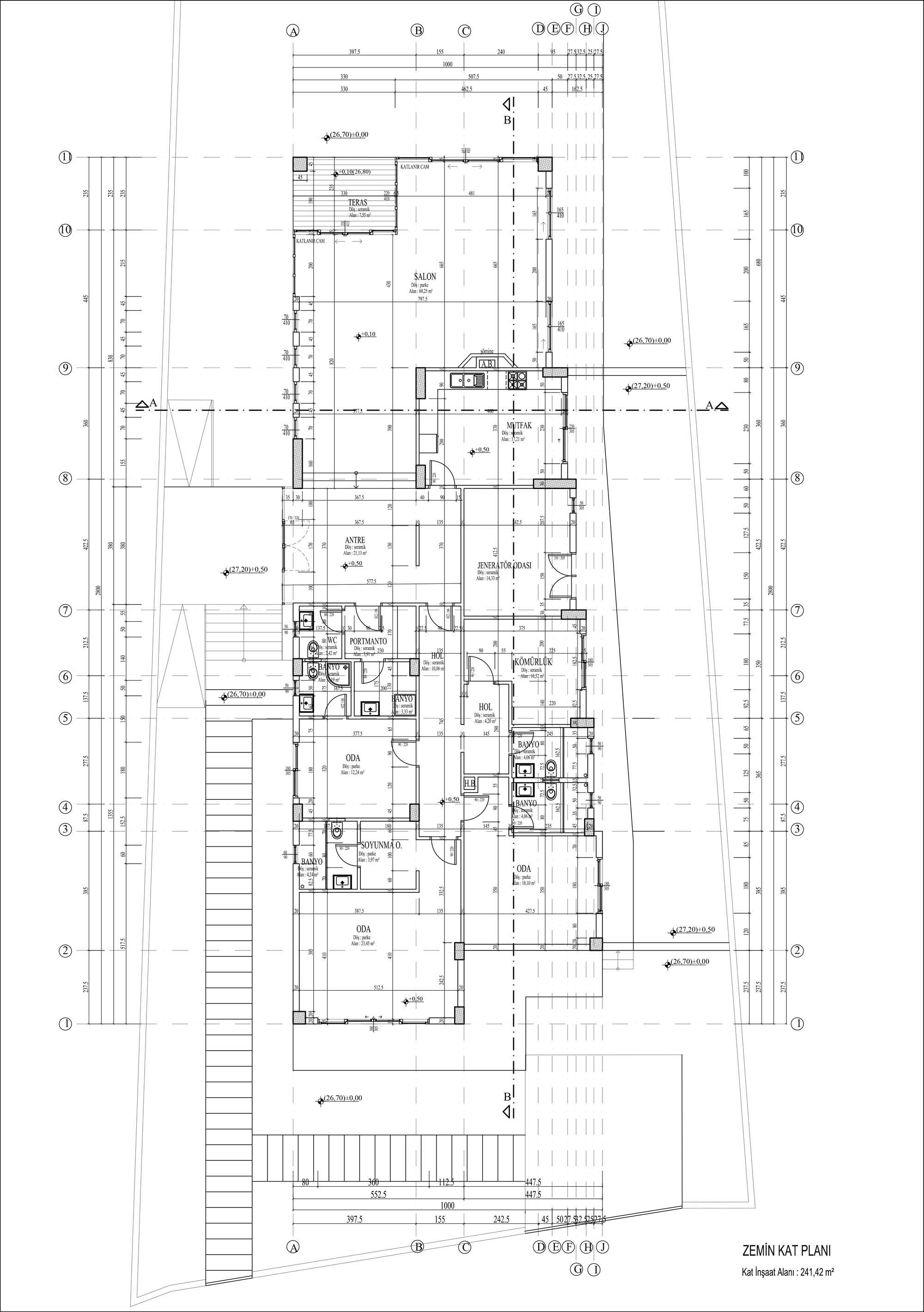
Casa Dino
Proje Yeri: İzmir, Çeşme
Proje Ofisi: AE Mimarlık
Proje Tipi: Tek Ev / Villa
Proje Tipi Grubu: Konut
Tasarım Ekibi: Ahmet Erkurtoğlu, Fatih Küpoğlu, Alize Erkurtoğlu Mican, Ali Can Atagür
İşveren: Sancar Belgü, İnpaş İnşaat AŞ
Ana Yüklenici: Sancar Belgü, İnpaş İnşaat AŞ
İç Mekan Projesi: Ebru Şerefoğlu
Proje Yöneticisi: Ahmet Erkurtoğlu
Proje Başlangıç Yılı: 2018
Proje Bitiş Yılı: 2019
İnşaat Başlangıç Yılı: 2018
İnşaat Bitiş Yılı: 2019
Arsa Alanı: 911 m2
Toplam İnşaat Alanı: 650 m²